物件をブックマーク
管理番号:S298086
*2026年3月中旬入居可能予定。
東急東横線「学芸大学駅」徒歩9分。
商店街のにぎわいと落ち着いた住環境を兼ね備えた、SOHO利用も相談できる住まい。
渋谷方面へのアクセスの良さを持ちながら、駅周辺にはローカルな商店街や個人店が並び、どこか落ち着いた空気が流れる学芸大学エリア。
今回ご紹介するのは、そんな街の空気感と相性の良い一室。
室内へ入ると、開口部から差し込む自然光とシンプルで整った内装が広がり、家具やレイアウト次第で住まいにもワークスペースにも柔軟に応えてくれる設計となっています。
SOHO相談可能な学芸大学らしいセンスの良い物件のご紹介です。
室内へ入ると、開口部から差し込む自然光とシンプルで整った内装が広がり、家具やレイアウト次第で住まいにもワークスペースにも柔軟に応えてくれる設計となっています。
SOHO相談可能な学芸大学らしいセンスの良い物件のご紹介です。

落ち着いた街並みにすっと溶け込む、洗練されたツートーンのファサード。
深みのあるブルーグレーとホワイトのコントラストが印象的で、住宅でありながらどこかスタジオやデザインオフィスのような雰囲気も感じさせます。
深みのあるブルーグレーとホワイトのコントラストが印象的で、住宅でありながらどこかスタジオやデザインオフィスのような雰囲気も感じさせます。
木目のフローリングに白い壁、そしてブラックの天井で空間を引き締めた、メリハリのあるデザイン。住宅としての落ち着きと、ワークスペースとしての機能性を両立した室内です。
窓面が多く、2方向から光が入るため、日中は照明に頼りすぎることなく過ごせる明るさ。視線の抜けもあり、コンパクトなサイズ感ながら圧迫感を感じにくい点も魅力です。
デスクを並べたオフィスレイアウトはもちろん、打ち合わせ兼用のテーブル配置や、ショールーム的な使い方にもフィット。ひっそりと構える拠点として、非常に扱いやすいプレーンな空間と言えるでしょう。
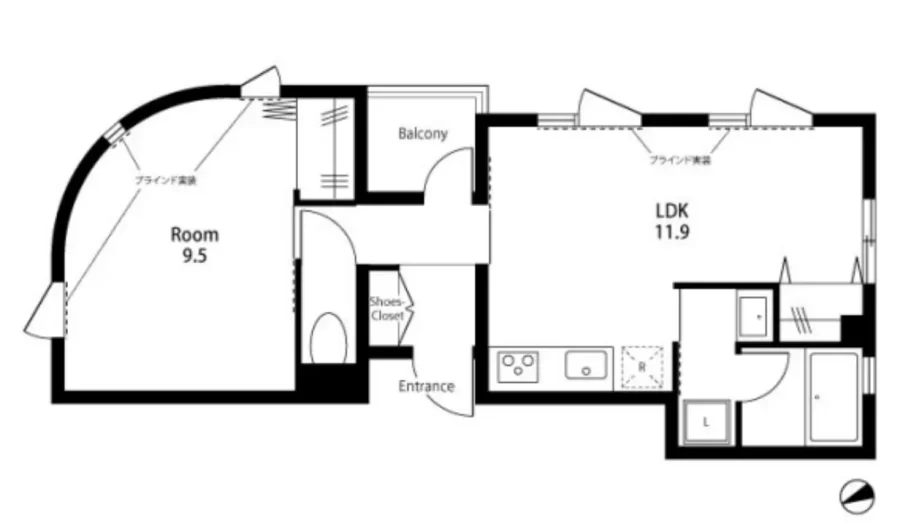
ゆるやかにカーブを描く壁が印象的な、少し特別な雰囲気を持つ一室。大きすぎないサイズ感だからこそ、包まれるような安心感があり、集中力を求める用途にぴったりです。


壁面には収納も備えられているため、資料や備品をすっきりと収めることが可能。
また、バルコニーがついている点も嬉しいポイントです。

キッチンはステンレス天板のシンプルでクリーンな仕様。
仕事に集中する時間と、しっかり休む時間。
その切り替えをスムーズにしてくれる水回りの充実度は、この物件の大きな魅力のひとつと言えるでしょう。
その切り替えをスムーズにしてくれる水回りの充実度は、この物件の大きな魅力のひとつと言えるでしょう。

オンとオフを無理なく切り替えながら働ける1LDK。
暮らしの延長線上にワークスペースを持ちたい方にとって、ちょうどいい現実解になりそうな物件です。
暮らしの延長線上にワークスペースを持ちたい方にとって、ちょうどいい現実解になりそうな物件です。
住居としての快適性、空間の使いやすさ、そしてSOHO相談可能という柔軟さ。
個人事業主やスモールチームの拠点として、ぜひ一度現地で体感してみてください。
個人事業主やスモールチームの拠点として、ぜひ一度現地で体感してみてください。
管理番号:S298086
賃料:¥265,000(非課税)
共益費:なし
住所:世田谷区下馬6
広さ:51.29㎡(15.51坪)
アクセス:東急東横線「学芸大学駅」徒歩9分
構造・規模:RC造 地上3階建 2階部分
築年:2026年
敷金:1ヶ月
礼金:1ヶ月
備考:普通借家契約(2年間)、保証会社利用相談、火災保険必須、ペット不可、楽器不可、喫煙者不可、SOHO相談可、社名表記不可、登記不可
賃料:¥265,000(非課税)
共益費:なし
住所:世田谷区下馬6
広さ:51.29㎡(15.51坪)
アクセス:東急東横線「学芸大学駅」徒歩9分
構造・規模:RC造 地上3階建 2階部分
築年:2026年
敷金:1ヶ月
礼金:1ヶ月
備考:普通借家契約(2年間)、保証会社利用相談、火災保険必須、ペット不可、楽器不可、喫煙者不可、SOHO相談可、社名表記不可、登記不可
〈上記以外で契約時に掛かる主な費用〉
・仲介手数料(賃料1.1ヶ月分(税込))
・前家賃(1ヶ月分)
・日割り家賃(月途中での賃料発生の場合)
・初回保証委託料(賃料合計の最大100%)
・火災保険料
The following two tabs change content below.
SOHOオフィスのファインディング、コンテンツ制作、リーシングを担当。
神奈川生まれ。東京藝術大学では油画を専攻、絵画や漫画などの創作活動を行う。その後、建築業界でリノベーションのセールスを経て、トランスリアルに参画。
最新記事 by 瀬川 (全て見る)
-
恵比寿・広尾、天高4mのアトリエ空間
[渋谷区/38万/59㎡] - 2026年3月13日 -
原宿、都会の中心にクリエイティブオフィスを構える
[渋谷区/37万/57㎡] - 2026年3月12日 -
外苑前3分、光溢れる最上階メゾネットオフィス
[港区/61万/79㎡]
- 2026年3月12日 -
幡ヶ谷、ペットと緑が豊かさを育む複合型オフィス
[渋谷区/37万〜/37㎡〜] - 2026年3月11日 -
原宿6分、使い方が広がる最上階ワークプレイス
[渋谷区/50万/87㎡] - 2026年3月11日
