物件をブックマーク
管理番号:S227262
*内見可能
*引き渡し時期:2026年4月中旬頃
恵比寿3分、デザイン性と構造を担う木造耐震システム、各フロアテラス付きのデザイナーズセットアップオフィスで働く。
日比谷線「恵比寿駅」徒歩3分、山手線「恵比寿駅」徒歩5分。
デザイン性と耐震構造を両立させた木の梁が特徴の新築デザイナーズオフィスをご紹介します。
デザイン性と耐震構造を両立させた木の梁が特徴の新築デザイナーズオフィスをご紹介します。
駒沢通り沿いの好立地と抜け感も両立しており、高いレベルで様々な要素が融合した物件です。
恵比寿駅から駒沢通りを代官山・中目黒方面に進んだところにある本物件。
周辺には各種飲食店舗・カフェ・ショップなどが点在し賑わいのあるエリア。
螺旋階段とランダムに配置されたテラスが印象的なスタイリッシュな外観です。
今回募集が始まる9階区画の室内。
木の梁が特徴の温かみのある雰囲気、ベースは鉄骨造ですが、木の梁に耐震性を付与させた意欲的な試みの物件。
白塗装壁とモルタル床でシンプルにまとめられている中に木の存在感がプラスされている。
恵比寿駅から駒沢通りを代官山・中目黒方面に進んだところにある本物件。周辺には各種飲食店舗・カフェ・ショップなどが点在し賑わいのあるエリア。
螺旋階段とランダムに配置されたテラスが印象的なスタイリッシュな外観です。
今回募集が始まる9階区画の室内。木の梁が特徴の温かみのある雰囲気、ベースは鉄骨造ですが、木の梁に耐震性を付与させた意欲的な試みの物件。
白塗装壁とモルタル床でシンプルにまとめられている中に木の存在感がプラスされている。
壁には造作の机と棚が設置されたセットアップタイプ。


自然光が入り、明るく清潔感のある心地よい空間。
すっきりとしたつくりのセットアップオフィスで、造作のデスクを生かし、チェアを持ち込んでいただければ5名〜10名程度のチームに最適なサイズ感です。


自然光が入り、明るく清潔感のある心地よい空間。
すっきりとしたつくりのセットアップオフィスで、造作のデスクを生かし、チェアを持ち込んでいただければ5名〜10名程度のチームに最適なサイズ感です。
各フロア前にテラスがついており、ちょっとした息抜きができる仕様です。家具付きのフロアもあり、こちらはPC関係さえあればすぐに仕事が始められる仕様。
ワンフロアワンテナントだが、6階や各階のテラス・屋上テラスは共用のため企業間での交流も図れる設計となっています。ドリンクや軽食が購入できる無人販売機もあり便利。
眺望が抜けていて開放感のある屋上。休憩やコミュニケーションスペースなどとして存分に利用していただきたいです。

交通系カードを登録すれば自分達のフロアへ自動で上がれたり、受取りも発送もできる宅配ボックスなどIoT設備も充実している。
全フロアテラス付き、デザイン性の高いセットアップオフィス。
恵比寿を拠点としたいスタートアップや、コンパクトなリモートワーク併用スペースとしてポテンシャルを感じる物件です。
管理番号:S227262
賃料: ¥734,450(税込¥807,895)
共益費:賃料に含む
住所:渋谷区恵比寿西1
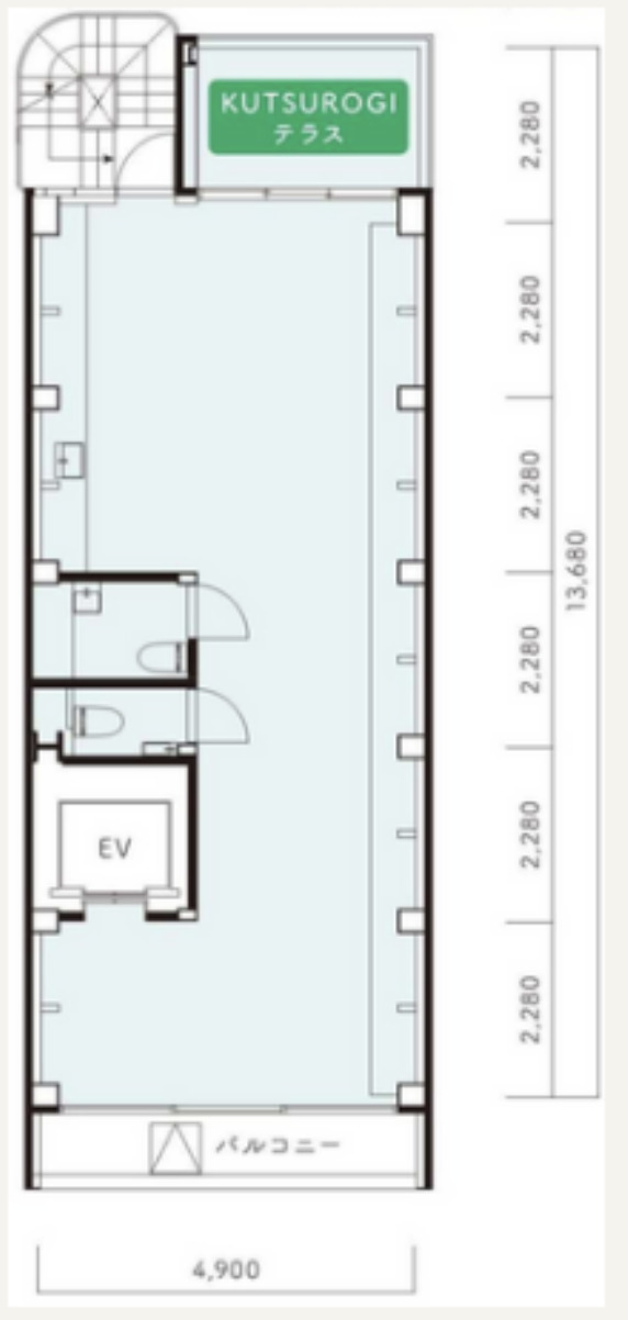
広さ:64.56㎡(19.53坪)
アクセス:東京メトロ日比谷線「恵比寿駅」徒歩3分、JR山手線「恵比寿駅」徒歩5分、東急東横線「代官山駅」徒歩5分
構造・規模:S造一部木造 地上9階建 9階部分
築年:2023年
敷金:8ヶ月(保証会社利用の場合 敷金0ヶ月相談可能)
礼金:なし
備考:定期借家契約(3年間)、保証会社利用相談、火災保険必須、原状回復不要(退去時クリーニング費用のみ)、再契約料なし、内見可能、引き渡し時期:2026年4月中旬
賃料: ¥734,450(税込¥807,895)
共益費:賃料に含む
住所:渋谷区恵比寿西1
広さ:64.56㎡(19.53坪)
アクセス:東京メトロ日比谷線「恵比寿駅」徒歩3分、JR山手線「恵比寿駅」徒歩5分、東急東横線「代官山駅」徒歩5分
構造・規模:S造一部木造 地上9階建 9階部分
築年:2023年
敷金:8ヶ月(保証会社利用の場合 敷金0ヶ月相談可能)
礼金:なし
備考:定期借家契約(3年間)、保証会社利用相談、火災保険必須、原状回復不要(退去時クリーニング費用のみ)、再契約料なし、内見可能、引き渡し時期:2026年4月中旬
〈上記以外で契約時に掛かる主な費用〉
・仲介手数料(賃料1.1ヶ月分(税込))
・前家賃(1ヶ月分)
・日割り家賃(月途中での賃料発生の場合)
・初回保証委託料(賃料合計の最大100%)
・火災保険料
The following two tabs change content below.
SOHOオフィスのファインディング、コンテンツ制作、リーシングを担当。
長野県生まれ。信州大学経済学部卒業後、リクルート、ベンチャーを経て当社へ。趣味は料理、テニス。フルマラソンはサブ4ランナー。不定期開催の社内パーティーでは料理長を務める一面も。
最新記事 by 木内 (全て見る)
-
恵比寿駅近く、ホワイトベースの洗練された空間で
[渋谷区/202万/203㎡] - 2026年1月30日 -
大塚5分、平田晃久氏デザインのSOHOオフィス
[豊島区/40万/63㎡] - 2026年1月29日 -
晴海、天井高4m以上が確保可能な大型オフィス
[中央区/ASK/673㎡~] - 2026年1月29日 -
五反田、イメージ裏切るラグジュアリー新築オフィス
[品川区/206万~/238㎡~] - 2026年1月27日 -
南品川、RC打ちっ放しの新築デザイナーズSOHO
[品川区/23万~/48㎡~] - 2026年1月27日
