物件をブックマーク
管理番号:S289663
*写真は似た間取りの別部屋のもの。異なる場合は現況優先になります。
*2026年5月上旬入居開始予定。
「大門駅」徒歩3分
外観と共に生まれ変わる、20名想定の会議室2つ付きリノベセットアップ
都営浅草・都営大江戸線「大門駅」徒歩3分、都営三田線「御成門駅」徒歩6分、JR山手線・京浜東北線・根岸線「浜松町駅」徒歩8分。
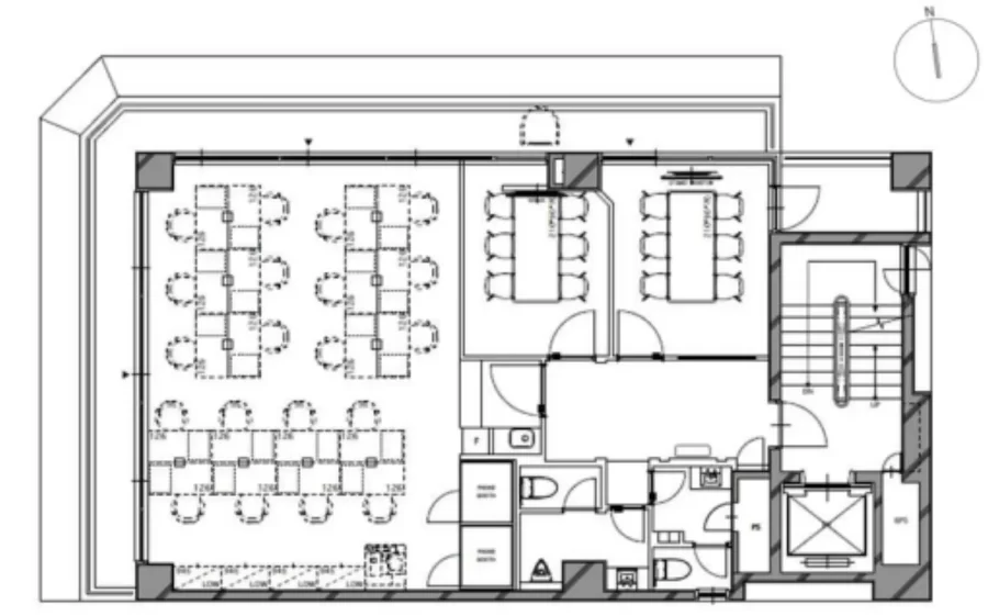
今回ご紹介する物件は、フロア全体を大胆にリニューアルした セットアップオフィス。
4Fは約97㎡で、20名程度の利用を想定した、小規模チーム向けの空間となっていて、都心の機動力を求めつつ、オフィスの質にもこだわりたい企業にフィットする仕上がりです。

直線を生かしたミニマルな構成の中に、マーブル調パネルの質感がアクセント。
ビル全体に落ち着いた重厚感を与えています。
ビル全体に落ち着いた重厚感を与えています。
エントランスフロアは、リニューアルで生まれ変わったホテルライクな共用空間が印象的。大理石調のマテリアルや、柔らかい間接照明が重なり合い、来客の第一印象を自然と引き上げてくれる設計です。
木目の天井パネルとライン照明が印象的な、デザイン性の高いセットアップオフィス。天井に施された素材感が空間全体に温かみを与えつつ、直線的に配置された照明が洗練されたワークスペースを演出しています。
室内はワンフロアで一体感のあるレイアウトとなっており、大型のワークテーブルを中心にチームでの業務が行いやすい構成。複数名が同時に作業できる余裕のある広さが確保されているため、部署単位での利用やプロジェクト型のチーム運用にも適しています。
窓面が広く取られていることで、自然光が入りやすく、日中は明るく開放的な執務環境を実現しています。
IT企業やスタートアップ、デザイン・制作会社、コンサルティングファームなど、コミュニケーションを重視した働き方を行う企業との相性が良さそうな空間です。
6名用会議室を2つ完備しております。ナチュラルな素材感と落ち着いた照明で整えられた会議室は、プレゼン・商談などでお使いいただけます。
テレカンブースも完備しているため、オンラインミーティングも可能です。
水回りもシンプルで、オフィス業務を促進してくれそうです。
水回りもシンプルで、オフィス業務を促進してくれそうです。
「大門駅」徒歩3分と立地に優れ、機能性とデザイン性のバランスが取れた、扱いやすいワークプレイスです。
必要な設備がすべて整っており、来客対応から日々の業務までストレスなく過ごせる環境がそろっています。
必要な設備がすべて整っており、来客対応から日々の業務までストレスなく過ごせる環境がそろっています。
ビジネスの拠点を新たに構えたい方や、チームの働き方を整えたい企業にもおすすめできる使い勝手の良いオフィスです。
管理番号:S289663
賃料:¥912,640(税込 ¥1,003,904)
共益費:賃料に含む
住所:港区芝大門1
広さ:97.33㎡(29.44坪)
アクセス:都営浅草・都営大江戸線「大門駅」徒歩3分、都営三田線「御成門駅」徒歩6分、JR山手線・京浜東北線「浜松町駅」徒歩8分
構造・規模:RC造陸屋根 地上5階建 4階部分
築年:1984年
敷金:6ヶ月(敷金ゼロプランの相談可能)
礼金:なし
備考:普通借家契約(2年間)、保証会社利用必須、火災保険必須、更新料(1ヶ月)
賃料:¥912,640(税込 ¥1,003,904)
共益費:賃料に含む
住所:港区芝大門1
広さ:97.33㎡(29.44坪)
アクセス:都営浅草・都営大江戸線「大門駅」徒歩3分、都営三田線「御成門駅」徒歩6分、JR山手線・京浜東北線「浜松町駅」徒歩8分
構造・規模:RC造陸屋根 地上5階建 4階部分
築年:1984年
敷金:6ヶ月(敷金ゼロプランの相談可能)
礼金:なし
備考:普通借家契約(2年間)、保証会社利用必須、火災保険必須、更新料(1ヶ月)
〈上記以外で契約時に掛かる主な費用〉
・仲介手数料(賃料1.1ヶ月分(税込))
・前家賃(1ヶ月分)
・日割り家賃(月途中での賃料発生の場合)
・初回保証委託料(賃料合計の最大100%)
・火災保険料
The following two tabs change content below.
SOHOオフィスのファインディング、コンテンツ制作、リーシングを担当。
イタリア、フランスで修行した後、西麻布「レフェルヴェソンス」をはじめ、様々なジャンルのレストランでキッチン、サービスに従事。
物件情報には周辺で評判の良い飲食店情報が付随してくる。
最新記事 by 小野寺 (全て見る)
-
大門3分、新たな会議室2つ付きリノベセットアップ
[港区/101万/97㎡] - 2026年3月12日 -
神保町、高パフォーマンスとデザイン両立のSOHO
[千代田区/50万/82㎡] - 2026年3月12日 -
千駄ヶ谷、穏やかな空気のコンパクトな新築一棟
[渋谷区/85万/118㎡]
- 2026年3月4日 -
小伝馬町3分、専用会議室有セットアップデザイナーズ
[中央区/55万/68㎡] - 2026年3月4日 -
学芸大学、貴重立地の新たなハーフセットアップ
[目黒区/100万/149㎡]
- 2026年3月2日
