物件をブックマーク
管理番号:S295063
JR山手線「渋谷駅」徒歩9分
外観から室内まで一貫した美しいラインが、落ち着いた執務時間を支える
代官山らしい落ち着きと、渋谷・恵比寿へも軽やかにアクセスできる利便性。
その両方を兼ね備えたエリアに佇む、静謐で上質な1LDKが募集開始となりました。
深い庇のラインや木質ルーバーが特徴的なアプローチは、住まいというより隠れ家のような私室。
深い庇のラインや木質ルーバーが特徴的なアプローチは、住まいというより隠れ家のような私室。
室内は天井高を確保しつつ、モノトーンとナチュラル素材で統一された凛としたデザインで、代官山での暮らしを、穏やかに、そして少しドラマチックに彩ってくれるSOHO物件です。

代官山らしい落ち着いた街並みにすっと馴染みながら、静かに個性を主張する外観デザイン。
縦格子と深い色味の外壁が生み出す凛とした佇まいは、コンパクトな建物でありながらも上質な存在感を放っています。

玄関を開けると広がる、廊下に沿って伸びるデスクカウンターが印象的な書斎スペース。
柔らかな間接照明と白基調の壁面が、集中したい時間にそっと寄り添うような静けさをつくり出しています。
奥に向かって程よく抜け感があり、在宅ワークや趣味の作業場としても心地よく使えそうです。
勾配天井と優雅な間接照明が印象的な主空間。
開放的な天井高とスケルトン階段の軽やかなデザインが、ワンランク上のSOHOらしい伸びやかな雰囲気をつくり出しています。
窓面から入り込む柔らかな光と、壁面の素材感が重なり合い、クリエイティブワークにもマッチする空間に。
家具配置の自由度も高く、打ち合わせの場としても、自社の世界観を表現する ワークスペースとしても活用できる仕上がりです。
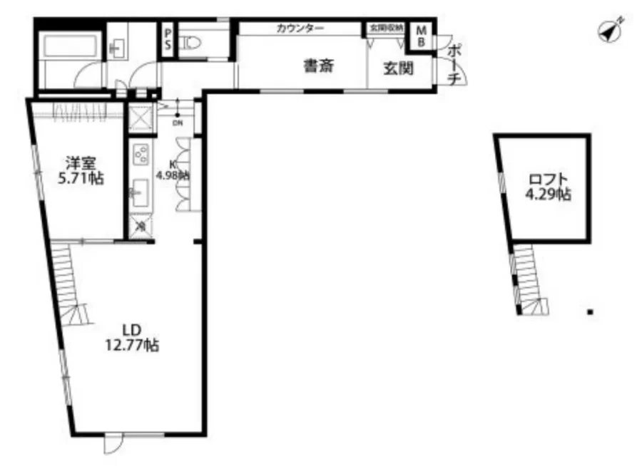
LDと洋室は、透明感のある引き戸でゆるやかに仕切られた設計。
扉を開けばひとつながりの大空間として使え、クローズすれば独立した個室に早変わりします。
ワークシーンに応じて空間を自在に切り替えられるため、オフィス利用はもちろん、自宅兼事務所としても高い柔軟性を発揮します。
柔らかな間接照明と白基調の壁面が、集中したい時間にそっと寄り添うような静けさをつくり出しています。
奥に向かって程よく抜け感があり、在宅ワークや趣味の作業場としても心地よく使えそうです。
勾配天井と優雅な間接照明が印象的な主空間。開放的な天井高とスケルトン階段の軽やかなデザインが、ワンランク上のSOHOらしい伸びやかな雰囲気をつくり出しています。
窓面から入り込む柔らかな光と、壁面の素材感が重なり合い、クリエイティブワークにもマッチする空間に。家具配置の自由度も高く、打ち合わせの場としても、自社の世界観を表現する ワークスペースとしても活用できる仕上がりです。
LDと洋室は、透明感のある引き戸でゆるやかに仕切られた設計。扉を開けばひとつながりの大空間として使え、クローズすれば独立した個室に早変わりします。
ワークシーンに応じて空間を自在に切り替えられるため、オフィス利用はもちろん、自宅兼事務所としても高い柔軟性を発揮します。
洋室の一角には、荷物をすっきりと整理できる収納スペースを確保。書類や備品をまとめて管理できるため、ワークスペースを常に整った状態に保てます。
生活と仕事が混ざりやすいSOHOスタイルでも、空間を美しく維持できる心強い設備です。
ゆるやかに傾斜した天井の下に広がるロフトスペースは、畳敷きの柔らかな質感に包まれたプライベートな小空間。床下の掘り込みスペースは、こもって作業をするための隠れ席のようでもあり、夜のひとり時間を楽しむための小上がりのようでもあります。

間接照明が壁面を静かに照らし、上階でありながら落ち着いた雰囲気に。
メインのLDKとは程よい距離があるため、読書やPC作業、ヨガやストレッチなど、ONとOFFを切り替える場所としても活躍しそうです。

水まわりは全体的にホテルライクな質感で統一され、ラグジュアリーな印象があります。

代官山らしい静けさと洗練をそのまま空間に落とし込んだ、上質なデザイナーズ物件。
光の入り方、天井高の変化、素材の質感、そしてロフトや書斎など多彩なワークスペースが、働き方や暮らし方に柔軟に寄り添います。
SOHO利用はもちろん、クリエイティブワークやプライベートを大切にしたい方にも心地よくフィットする一室です。
日常を少し特別にしてくれるような、代官山という街との相性のよさも魅力。ここでの時間が、次のアイデアやプロジェクトを自然と生み出してくれそうです。
日常を少し特別にしてくれるような、代官山という街との相性のよさも魅力。ここでの時間が、次のアイデアやプロジェクトを自然と生み出してくれそうです。
管理番号:S295063
賃料:¥465,000(SOHO利用時:税込 ¥511,500)
共益費:¥15,000(SOHO利用時:税込 ¥16,500)
住所:渋谷区鉢山町4
広さ:61.83㎡(18.7坪)
アクセス:JR山手線「渋谷駅」徒歩9分、東急東横線「代官山駅」徒歩10分
構造・規模:木RC造 地下1階付き地上2階建 2階部分
築年:2024年
敷金:2ヶ月
礼金:1ヶ月
備考:定期借家契約(2年間)、再契約料(新賃料の1ヶ月)、保証会社利用必須、火災保険必須、事務所使用相談
賃料:¥465,000(SOHO利用時:税込 ¥511,500)
共益費:¥15,000(SOHO利用時:税込 ¥16,500)
住所:渋谷区鉢山町4
広さ:61.83㎡(18.7坪)
アクセス:JR山手線「渋谷駅」徒歩9分、東急東横線「代官山駅」徒歩10分
構造・規模:木RC造 地下1階付き地上2階建 2階部分
築年:2024年
敷金:2ヶ月
礼金:1ヶ月
備考:定期借家契約(2年間)、再契約料(新賃料の1ヶ月)、保証会社利用必須、火災保険必須、事務所使用相談
〈上記以外で契約時に掛かる主な費用〉
・仲介手数料(賃料1.1ヶ月分(税込))
・前家賃(1ヶ月分)
・日割り家賃(月途中での賃料発生の場合)
・初回保証委託料(賃料合計の最大100%)
・火災保険料
The following two tabs change content below.
SOHOオフィスのファインディング、コンテンツ制作、リーシングを担当。
立教大学を卒業後、出版社でライフスタイル誌の企画、取材、撮影などに従事。同誌のウェブマガジン立ち上げ、コンテンツ制作を経てトランスリアルに参画。趣味は映画と音楽とトレーニング。
最新記事 by 辰口 (全て見る)
-
八丁堀3分、原状回復なし、上質な什器付オフィス
[中央区/62万/60㎡] - 2026年1月9日 -
高田馬場5分、コンパクトデザイナーズオフィス
[新宿区/22万/38㎡] - 2026年1月9日 -
渋谷3分、素材感生かしたワンフロアリノベオフィス
[渋谷区/131万/123㎡] - 2026年1月9日 -
神宮前5丁目、2LDK+DENの低層デザイナーズSOHO
[渋谷区/78万/119㎡]
- 2026年1月8日 -
上野6分、高級感溢れる家具付セットアップオフィス
[台東区/49万/69㎡] - 2026年1月7日
