物件をブックマーク
管理番号:S295166
代々木上原の眺望を独り占めできる、開放的なルーフバルコニー付きSOHOオフィス。
*登記不可
*予約制サロンご相談可能
*2026年1月中のご入居でフリーレント1ヶ月
*予約制サロンご相談可能
*2026年1月中のご入居でフリーレント1ヶ月
代々木上原らしい落ち着きと洗練が同居するエリアに、サロンやSOHO利用にぴったりのデザイナーズ空間が登場しました。
コンクリートの質感と大きな開口部を生かした2層構造。上階には開放的なルーフバルコニーへとつながる明るいワークスペースが広がり、自宅兼オフィスとしてもコンパクトなチームの拠点としても柔軟に使える造りです。

代々木上原らしい落ち着いた住宅街に位置する当物件、建物は直線が印象的な軽やかなモダンさを纏っています。
白とグレーを基調にした洗練された佇まいは、SOHO利用やクリエイティブワークとの相性も良く、訪れるクライアントにも好印象を与えてくれます。
玄関を開けると、コンクリート打ちっぱなしの壁と、白い階段が対照的な表情をつくるミニマルな空間が迎えてくれます。無駄を削ぎ落としたデザインは、静けさと上質さを感じさせる雰囲気。
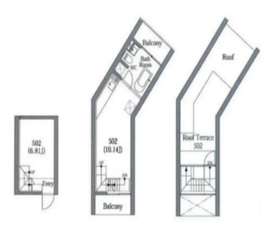
階段を上がると、代々木上原らしい静かな街並みを見下ろす、明るいワンルーム空間が広がります。SOHO利用やクリエイティブワークにも相性の良い、ニュートラルなデザインが魅力です。
天井にはライティングレールが備わっているため、ギャラリーのように照明を調整し、空間演出を楽しめる点もポイント。
約10帖の奥行きのある間取りで、家具のレイアウトがしやすい造り。
ワークデスクを壁側に寄せたり、ソファスペースを窓側に配置したりと、仕事とプライベートを柔らかく区切ることも可能です。
最上階へ上がると、代々木上原の街並みを一望するプライベートルーフバルコニーが現れます。
視界を遮るものが少なく、遠くには新宿副都心の高層ビル群まで見渡せる開放的な眺望。
都心とは思えない抜け感があり、晴れた日にはずっとここにいたくなるような心地よさです。

天井にはライティングレールが備わっているため、ギャラリーのように照明を調整し、空間演出を楽しめる点もポイント。
約10帖の奥行きのある間取りで、家具のレイアウトがしやすい造り。ワークデスクを壁側に寄せたり、ソファスペースを窓側に配置したりと、仕事とプライベートを柔らかく区切ることも可能です。
最上階へ上がると、代々木上原の街並みを一望するプライベートルーフバルコニーが現れます。視界を遮るものが少なく、遠くには新宿副都心の高層ビル群まで見渡せる開放的な眺望。
都心とは思えない抜け感があり、晴れた日にはずっとここにいたくなるような心地よさです。

広さにもゆとりがあり、自然光を利用した撮影スペースとしての利用や、ワークの合間に息抜きをするアウトドアラウンジとしても活躍します。

ミニマルで、ホテルライクな落ち着いた雰囲気が漂う水回りスペース。
洗面台は壁付けでシンプルに、キッチンはステンレス天板でミニマルに、余白の多い構成はSOHO利用の来客時にも好印象です。
洗面台は壁付けでシンプルに、キッチンはステンレス天板でミニマルに、余白の多い構成はSOHO利用の来客時にも好印象です。

代々木上原の穏やかな住宅街にありながら、室内はデザイン性と機能性をしっかり備えたSOHO向けプラン。
ルーフバルコニーがもたらす開放感、階層ごとに役割を分けられる動線、そしてシンプルで扱いやすいデザインは、住居兼オフィスはもちろん、クリエイティブワーカーの拠点としても相性が良いはずです。
ルーフバルコニーがもたらす開放感、階層ごとに役割を分けられる動線、そしてシンプルで扱いやすいデザインは、住居兼オフィスはもちろん、クリエイティブワーカーの拠点としても相性が良いはずです。
代々木上原エリアで、日常と仕事を上質に切り替えられるSOHOオフィスをお探しの方に、ぜひおすすめしたい一室です。
管理番号:S295166
賃料:¥350,000(税込¥385,000)
共益費:¥10,000(税込¥11,000)
住所:渋谷区上原1
広さ:46.62㎡(14.1坪)
アクセス:小田急線「代々木上原駅」徒歩5分、東京メトロ千代田線「代々木公園駅」徒歩7分
構造・規模:S造 地下1階地上6階建 5階部分
築年:2008年
敷金:2ヶ月(SOHO利用時は1ヶ月積み増し)
礼金:なし
備考:普通借家契約(2年間)、保証会社利用必須、火災保険必須、サービス店舗・SOHO相談可能、登記不可、1年未満解約違約金あり(1ヶ月前予告)、室内クリーニング費(入居時:¥110,000)、鍵交換費(入居時:¥33,000)、フリーレント1ヶ月(1月中旬入居限定)
賃料:¥350,000(税込¥385,000)
共益費:¥10,000(税込¥11,000)
住所:渋谷区上原1
広さ:46.62㎡(14.1坪)
アクセス:小田急線「代々木上原駅」徒歩5分、東京メトロ千代田線「代々木公園駅」徒歩7分
構造・規模:S造 地下1階地上6階建 5階部分
築年:2008年
敷金:2ヶ月(SOHO利用時は1ヶ月積み増し)
礼金:なし
備考:普通借家契約(2年間)、保証会社利用必須、火災保険必須、サービス店舗・SOHO相談可能、登記不可、1年未満解約違約金あり(1ヶ月前予告)、室内クリーニング費(入居時:¥110,000)、鍵交換費(入居時:¥33,000)、フリーレント1ヶ月(1月中旬入居限定)
〈上記以外で契約時に掛かる主な費用〉
・仲介手数料(賃料1.1ヶ月分(税込))
・前家賃(1ヶ月分)
・日割り家賃(月途中での賃料発生の場合)
・初回保証委託料(賃料合計の最大100%)
・火災保険料
The following two tabs change content below.
SOHOオフィスのファインディング、コンテンツ制作、リーシングを担当。
神奈川生まれ。東京藝術大学では油画を専攻、絵画や漫画などの創作活動を行う。その後、建築業界でリノベーションのセールスを経て、トランスリアルに参画。
最新記事 by 瀬川 (全て見る)
-
表参道、空に近い天高3.8mの新築戸建風SOHO
[渋谷区/95万/133㎡] - 2026年1月9日 -
小川町、3プランから選べるセットアップオフィス
[千代田区/55万/48㎡] - 2026年1月9日 -
原宿・北参道、自然光が魅力的なホワイトオフィス
[渋谷区/50万/78㎡] - 2026年1月9日 -
新橋3分、リノベハーフセットアップを敷礼0で
[港区/81万/100㎡] - 2026年1月6日 - 【募集終了】駒沢大学、世界観を創り上げるハウススタジオ戸建 - 2025年12月25日
