物件をブックマーク
管理番号:S193248
今回ご紹介するのは、完全個室の会議室が設置された家具付きセットアップオフィス。
今なお江戸情緒が息づく「新富町駅」から徒歩1分の場所に位置します。
中央区役所入口交差点が至近にあり便利かつ、大通りに面した立地なので見通しが良い印象です。
外観はグレーの石張りの高級感のあるデザインでシックな雰囲気を放ちます。
周囲には飲食店が多数点在しているため、ランチタイムの選択肢が多いところも嬉しいですね。
広めの階段から入るエントランスアプローチも上質なグレードを感じさせる装いです。
エントランス部分も広々とした明るい空間なので、来客が多い企業にもおすすめ。
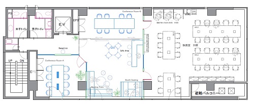
間取りは1フロア約195㎡のミドルサイズ。
窓も多く、ビルの角地に面し2面採光が確保できるので抜け感は抜群です。
エレベーターから降りてすぐにはご覧のようにラウンジスペースがございます。
バーカウンターもあるためこだわりのオフィス造りが実現でき、明るく快適なオフィス生活が送れそうですよね。
ラウンジスペース横には会議室もございます。
8名程度でゆったり、椅子を追加すれば10名程度でも十分使用できそうなサイズ感です。
執務室は長方形の間取りでレイアウトのしやすい作りですので、さまざまな事業に対応できます。
約30名程度のワークスペースとして使用できそうです。
トイレもリノベされておりとても綺麗。
写真は男性用のものですが、しっかり男女別完備です。
エレベーターの裏側にあり執務空間と一画を置いたレイアウトになっております。
有楽町線「新富町駅」徒歩1分、日比谷線「築地駅」徒歩4分。
複数路線が利用可能なため行動範囲を広く持つことができる魅力のあるロケーションでもあります。
銀座エリアも徒歩圏内のため、接待や会食が多い場合にも便利かと。
ぜひ一度ご検討されてみてはいかがでしょうか。
管理番号:S193248
賃料:
管理費:
住所:中央区築地2
広さ:194.91㎡(58.96坪)
アクセス:有楽町線「新富町駅」徒歩1分、日比谷線「築地駅」徒歩4分
構造:鉄骨鉄筋コンクリート造9階建 5階部分
築年:1992年
保証金:
礼金:
備考:普通借家契約2年(更新料なし)、保証会社必須
最新記事 by 辰口 (全て見る)
-
渋谷、家具・会議室付きデザイナーズオフィス
[渋谷区/145万〜/114㎡] - 2026年1月30日 -
渋谷6分、敷金0、会議室付のハーフセットアップ
[渋谷区/142万/114㎡] - 2026年1月30日 -
築地駅の出口前、カフェ風セットアップ
[中央区/69万/85㎡] - 2026年1月29日 -
大塚駅5分、会議室付シンプルデザイナーズオフィス
[豊島区/91万/152㎡] - 2026年1月27日 -
恵比寿駅4分、家具付き築浅デザイナーズ
[渋谷区/165万/124㎡] - 2026年1月26日
