目黒区

【募集終了】中目黒2分の好立地。シックなワンフロアオフィス

Loading物件をブックマーク

※店舗利用相談可能(飲食店不可)

東急東横線・日比谷線「中目黒駅」より徒歩2分。
2020年11月にリノベーションされたばかりのオフィスのご紹介です。黒で統一されたシックな外観。
1,2階には飲食店が入居しています。
中目黒の駅前というだけあり、周辺は人通りが多く賑やか。建物内も綺麗にリニューアルされており、黒を基調としたモダンな内装に変更されています。
オフィス向きの広めのワンルームタイプ。
天井は抜かれており、白の塗装とライティングレールの仕様にリノベーション。
床面は黒系のフローリング調の塩ビシートが貼られています。
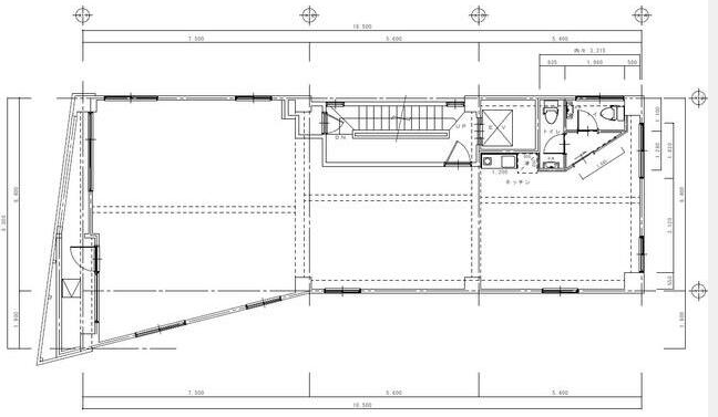
広さ約100平米のワンフロア、最大で15人程度が働ける広さでしょうか。
長方形に近い間取りで、梁や柱の部分でうまく空間が分けられそうです。キッチンはコンパクトにまとめられています。
トイレは2箇所設置されており、男女別に分けることが出来ます。

7階部分には吹き抜けがあり、採光がもう一段階良さそうです。
アクセスの良さを活かして、営業活動の拠点や来客を想定した事務所にいかがでしょうか。

管理番号:S171346
賃料:
共益費:
住所:目黒区上目黒3
広さ:98.50㎡(29.8坪)
アクセス:東急東横線・日比谷線「中目黒駅」徒歩2分、山手線「恵比寿駅」徒歩13分
構造・規模:RC造7階建て 4,5,7階部分
築年:1972年
保証金:
礼金:
備考:定期借家契約(期間相談)、店舗利用相談可能(飲食店不可)

〈上記以外で契約時に掛かる主な費用〉
・仲介手数料(賃料1ヶ月分税別)
・前家賃(1ヶ月分)
・日割り家賃(月途中での賃料発生の場合)
・初回保証委託料(賃料合計の最大100%)
・火災保険料

The following two tabs change content below.
SOHOオフィスのファインディング、コンテンツ制作、リーシングを担当。 新潟生まれ。大学卒業後、アイウェア企業に入社。店舗での店長経験などを経てトランスリアルに参画。
URL
TBURL
Return Top