物件をブックマーク
*複数部屋募集中。予約制サロン相談可能
管理番号:S290004
飯田橋、神楽坂エリアのモダンな新築SOHO。
高級感と使いやすさのミックスが程よい。
東京メトロ(東西線・有楽町線・南北線・大江戸線)およびJR中央・総武線が利用可能な「飯田橋駅」徒歩5分の好立地でビジネスにも通勤にも最適な、アクセス抜群の物件をご紹介します。
外観は少しアンティークな風合いを纏ったシンメトリーなデザイン。ベランダ面の鉄格子にも装飾が施されるなどこだわりも見える。
石調タイルとアイアン装飾が印象的な外観は、クラシカルな雰囲気と重厚感を演出。エントランスホールは大理石調の壁面に間接照明を備えられ、来客の方も安心してご利用になられます。

304号室
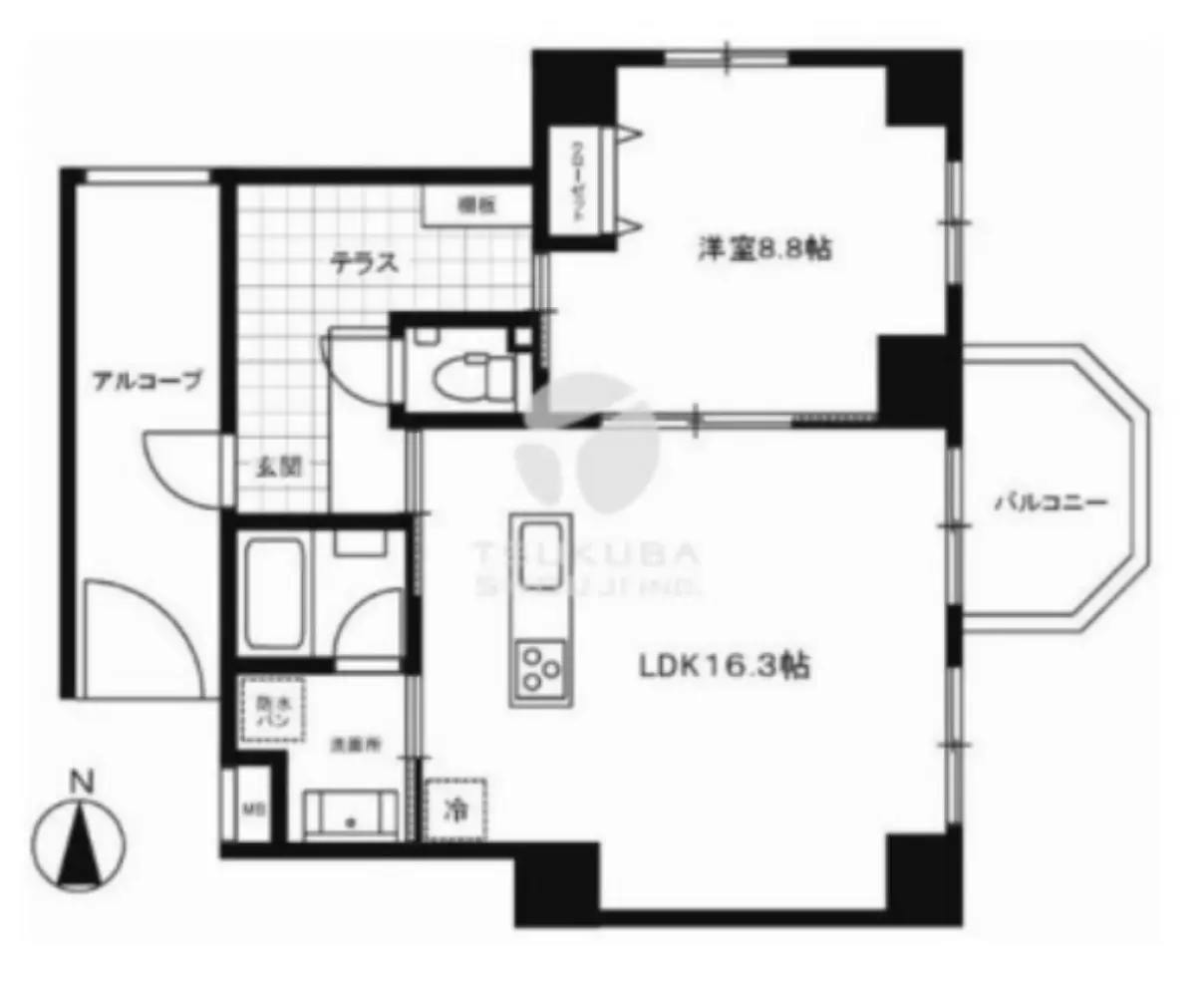
大きめの窓によりきちんと自然光も取り入れつつ、ダークウッド調の床と白を基調とした壁面で、落ち着いて集中しやすい室内デザインとなっています。
店舗としても清潔感もありシンプルな内装を活かすか個性を出すかは悩みどころ。
店舗としても清潔感もありシンプルな内装を活かすか個性を出すかは悩みどころ。

広々とした室内は6~8名程度のワークスペースとしてもゆとりのある設計となっています。
サロンであればベットを2~3程度でしょうか。
サロンであればベットを2~3程度でしょうか。

1LDK以上のお部屋はこういった8帖程度の個室が。
秘匿性の高いものを扱う場合は会議室や個室の施術室などはどうでしょうか。

キッチンや収納も充実しており、SOHO利用にも最適な環境が整っています。

水回りもハイスペックな設備が備わっています。
新築なので未使用なのも物件として高得点。



静けさと利便性を両立する新宿区・飯田橋エリアのSOHO物件。
部屋によって間取りも異なるため使い方に合わせた間取りを今なら選べる。
ビジネスの第一印象を大切にしたい方へ、自信を持っておすすめします。
部屋によって間取りも異なるため使い方に合わせた間取りを今なら選べる。
ビジネスの第一印象を大切にしたい方へ、自信を持っておすすめします。
管理番号:S290004
賃料:304/¥341,000(税込 ¥375,100)
賃料:304/¥341,000(税込 ¥375,100)
602/¥353,000(税込¥388,300)
603/¥310,000(税込¥341,000)
共益費:¥18,000(税込 ¥198,000)
住所:新宿区新小川町9
広さ:304/52.28㎡(15.81坪)
共益費:¥18,000(税込 ¥198,000)
住所:新宿区新小川町9
広さ:304/52.28㎡(15.81坪)
602/60.00㎡(18.15坪)
603/52.85㎡(52.85坪)
アクセス:東京メトロ東西線・大江戸線・有楽町線・南北線「飯田橋駅」徒歩5分、JR総武中央線線「飯田橋駅」徒歩9分
構造・規模:RC造 地上6階建 3,6階部分
築年:2025年
敷金:2ヶ月
礼金:1ヶ月
備考:定期借家契約(5年間)、保証会社利用必須、火災保険必須、再契約料(1ヶ月)、駐輪場(月額¥1,000/台)、駐車場(月額¥45,000/台)
アクセス:東京メトロ東西線・大江戸線・有楽町線・南北線「飯田橋駅」徒歩5分、JR総武中央線線「飯田橋駅」徒歩9分
構造・規模:RC造 地上6階建 3,6階部分
築年:2025年
敷金:2ヶ月
礼金:1ヶ月
備考:定期借家契約(5年間)、保証会社利用必須、火災保険必須、再契約料(1ヶ月)、駐輪場(月額¥1,000/台)、駐車場(月額¥45,000/台)
〈上記以外で契約時に掛かる主な費用〉
・仲介手数料(賃料1.1ヶ月分(税込))
・前家賃(1ヶ月分)
・日割り家賃(月途中での賃料発生の場合)
・初回保証委託料(賃料合計の最大100%)
・火災保険料
The following two tabs change content below.
SOHOオフィスのファインディング、コンテンツ制作、リーシングを担当。
新潟生まれ。大学卒業後、アイウェア企業に入社。店舗での店長経験などを経てトランスリアルに参画。
最新記事 by 村山 (全て見る)
-
田町、バルコニーが繋ぐ水辺の新築セットアップ
[港区/102万〜/79㎡〜] - 2026年3月19日 -
泉岳寺3分、高台に立つ打ち放しデザイナーズ。
[港区/26万/38㎡] - 2026年3月19日 -
神谷町4分、東京タワーを望むセットアップオフィス
[港区/152万/162㎡] - 2026年3月18日 -
明治神宮前、元撮影スタジオのハイグレード居抜き
[渋谷区/83万/69㎡] - 2026年3月17日 -
恵比寿徒歩6分、スタジオタイプのモノトーンSOHO
[渋谷区/25万/42㎡] - 2026年3月17日
