物件をブックマーク
管理番号:S56457青山一丁目徒歩5分、公園沿いの個性的なプランのヴィンテージ低層オフィスで働く。
*写真は前回募集時のもの。異なる場合は現況優先になります。
*2026年2月1日上旬内見開始予定。先行申込可能。
青山一丁目の駅から乃木坂方面へ5分ほど歩くと、青葉公園の芝生の向こうに今回の物件が見えてきます。

都心のオフィス物件でありながら、公園を背にした爽やかなロケーションは嬉しいですね。

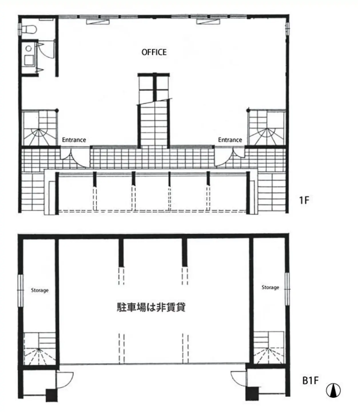
青山通りから一本入った閑静な街並みに佇みます。ご紹介するお部屋B1〜1階。
通りに向いたウインドウは社名のサイネージなどに活用できそうです。
通りに向いたウインドウは社名のサイネージなどに活用できそうです。


室内に入ると、採光豊かな明るい空間がひろがります。
広さは約70㎡、タイルカーペットが敷かれたシンプルな内装です。
床を変えたり、インテリアにこだわることでがらっと雰囲気を変えることができそう。
左右のスペースの間に仕切りはなく、一続きのスペースになっています。
左右を合わせれば6-8名ほどが働けそうな広さ。
広さは約70㎡、タイルカーペットが敷かれたシンプルな内装です。
床を変えたり、インテリアにこだわることでがらっと雰囲気を変えることができそう。
左右のスペースの間に仕切りはなく、一続きのスペースになっています。左右を合わせれば6-8名ほどが働けそうな広さ。
公園側の窓からは自然光と適度な人の賑わいが感じられ、穏やかな空間がつくられています。

水回りは最低限の設備で、シンプルで目立たない配置です。

部屋の左右には5㎡ほどの地下室が一つずつ。

書庫や倉庫としてちょうど良いサイズ感です。

青葉公園に面したロケーションが魅力の今回の物件。都心にありつつ空や緑を眺めながら働ける、少し非日常感のある空間です。企業のオフィスにはもちろん、クリエイターのアトリエにも最適ではないでしょうか。
管理番号:S56457
賃料:¥400,000(税込¥440,000)
賃料:¥400,000(税込¥440,000)
管理費:なし
住所:港区南青山1
広さ:70.38㎡
アクセス:銀座線「青山一丁目」駅徒歩5分、千代田線「乃木坂」駅徒歩7分
構造・規模:木造地上3階地下1階建て B1〜1階部分
築年:1988年
敷金・保証金:6ヶ月(償却2ヶ月)
礼金:なし
備考:普通借家契約(2年間)、保証会社利用必須、火災保険必須、解約予告2ヶ月前
住所:港区南青山1
広さ:70.38㎡
アクセス:銀座線「青山一丁目」駅徒歩5分、千代田線「乃木坂」駅徒歩7分
構造・規模:木造地上3階地下1階建て B1〜1階部分
築年:1988年
敷金・保証金:6ヶ月(償却2ヶ月)
礼金:なし
備考:普通借家契約(2年間)、保証会社利用必須、火災保険必須、解約予告2ヶ月前
〈上記以外で契約時に掛かる主な費用〉
・仲介手数料(賃料1ヶ月分税別)
・前家賃(1ヶ月分)
・日割り家賃(月途中での賃料発生の場合)
・初回保証委託料(賃料合計の最大100%)
・火災保険料
The following two tabs change content below.
SOHOオフィスのファインディング、コンテンツ制作、リーシングを担当。
神奈川生まれ。東京藝術大学では油画を専攻、絵画や漫画などの創作活動を行う。その後、建築業界でリノベーションのセールスを経て、トランスリアルに参画。
最新記事 by 瀬川 (全て見る)
-
白金、北里通り沿い。ガラス張りのデザイナーズ一棟
[港区/127万/183㎡] - 2026年1月15日 -
御成門2分、共用部が彩る天高4m大小新築オフィス
[港区/25万~/8㎡~] - 2026年1月15日 -
表参道、空に近い天高3.8mの新築戸建風SOHO
[渋谷区/95万/133㎡] - 2026年1月9日 -
小川町、3プランから選べるセットアップオフィス
[千代田区/55万/48㎡] - 2026年1月9日 -
原宿・北参道、自然光が魅力的なホワイトオフィス
[渋谷区/50万/78㎡] - 2026年1月9日
