物件をブックマーク
管理番号:S232603
*写真は前回募集時のもの。異なる場合は現況優先になります。
*2026年2月上旬入居可能予定
*内見可能
*平置き駐車場1台(税抜¥70,000)駐車場の契約は必須となります。
*内見可能
*平置き駐車場1台(税抜¥70,000)駐車場の契約は必須となります。
恵比寿・代官山エリア、デザイン性の高さと開放感とコストパフォーマンスの融合。
専有テラス付きのフルセットアップオフィス。
恵比寿・代官山からそれぞれ徒歩圏内のリノベーションオフィスをご紹介。
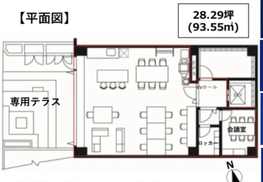
ワンフロア28坪のサイズ感に家具付きのリノベーション、加えて敷金・礼金をなくしてしまうというかなり珍しい部類の物件だ。
もちろんリノベーションの質も自体も高く、今回募集のフロアには専用利用できるテラス付きという部分でも魅力的であることは間違いないだろう。
駒沢通りから一本入った立地、地下と1F部分が少しえぐれた特徴のある外観。
今回募集の地下区画には広々とした専用テラス付き、傾斜地にあるので実質1F感覚で利用でき、視認性も高いオフィスとなっている。
路面店のような雰囲気のある地下1階の室内は、モルタル床とフローリング床で切り替わったデザインになっており、家具付きのプランでリノベーション済み。
3.3mの天井高と二面採光の抜け感が心地よい、PCやOA機器さえ持って来ればすぐに仕事を開始できる環境がここにはある。
現在設置済みの家具を活用すると11名までのオフィスとオープンなミーティングスペースとなる。
スペースには余裕があるため、什器を持ち込んでプラスアルファのレイアウトも可能。
この空間の良さは独特な開放感にあると思う、ビル自体の素材の良さが無ければここまでのレベルに到達出来ないはずだ。
別途クローズドな6名用のミーティングスペースはガラス張りになっており閉塞感を感じさせない工夫がある。
敷金・礼金のない徹底したイニシャルコストの削減を狙った意欲的な今回の物件。
高いデザイン性は成長企業の拡張移転にも、リモートワークの推進によるオフィス最適化にも魅力的な選択肢となるはず。
強気の賃料設定は懸念点かもしれないが、諸々のコストを比較検討すると10名前後のオフィスとしては見逃せない存在になるだろう。
管理番号:S232603
賃料: ¥1,270,000(税込 ¥1,397,000)
管理費:なし
住所:渋谷区恵比寿南3
広さ:93.55㎡(28.29坪)
アクセス:日比谷線「恵比寿駅」徒歩4分、山手線「恵比寿駅」徒歩6分、東横線「代官山駅」徒歩5分
構造:RC造 地下1階つき地上4階建て 地下1階部分
築年:1993年
敷金:なし
礼金:なし
備考:普通借家契約(2年間)、保証会社利用必須、火災保険加入必須、クリーニング費用1ヶ月分、平置き駐車場1台(税込¥77,000)、駐車場の契約は必須となります(4ヶ月)
〈上記以外で契約時に掛かる主な費用〉
・仲介手数料(賃料1ヶ月分税別)
・前家賃(1ヶ月分)
・日割り家賃(月途中での賃料発生の場合)
・初回保証委託料(賃料合計の最大100%)
・火災保険料
The following two tabs change content below.
SOHOオフィスのファインディング、コンテンツ制作、リーシングを担当。
東京生まれ。俳優として舞台、映像作品、CMなど250作品以上に出演。舞台脚本家、演出家として15作品の制作を経て、トランスリアルに参画。
最新記事 by 和久井 (全て見る)
-
新宿、123坪デザイナーズオフィスでビジネスを躍進
[新宿区/ASK/407㎡] - 2026年1月31日 -
恵比寿、専用テラス付、敷金礼金なしのセットアップ
[渋谷区/140万/93㎡] - 2026年1月27日 -
田町札の辻そば。フルリノベーションオフィス
[港区/38万/66㎡] - 2026年1月25日 -
人形町、アパルトマンを彷彿とさせるセットアップ
[中央区/50万/62㎡] - 2026年1月22日 -
赤坂、敷礼0のリノベ済みセットアップオフィス
[港区/82万/111㎡] - 2026年1月21日
