物件をブックマーク
東急東横線「代官山駅」より徒歩4分、山手線・東京メトロ日比谷線「恵比寿駅」より徒歩10分。
築浅のデザイナーズ居抜きオフィスのご紹介です。
人気のカフェが点在する代官山エリア。
今回ご紹介する物件は、公道から少し入った隠れ家的な位置にございます。
2016年竣工のデザイナーズビル。
アプローチからの見え方や階下にはカフェや美容院が入居しており、代官山の洒落た雰囲気が感じられます。
今回の募集区画は2階。
打ちっ放しのコンクリートと木目が際立つフローリングの組み合わせが洗練された印象です。
使い込むほどに変化する風合いを楽しめそうですね。
デスクの並ぶメインエリアは20名弱でのご利用にちょうど良い大きさです。
オフィスのコーディネートに頭を悩ませる必要がないのも、居抜き物件のいいところ。
エントランスの近くには大小2つの応接スペースが設けられています。
メインの空間とはしっかりと仕切られており、互いに集中できる環境となっております。
最も光の入るこちらのスペースは、リフレッシュエリアとして作られたもの。
大きめのディスプレイも設置されています。
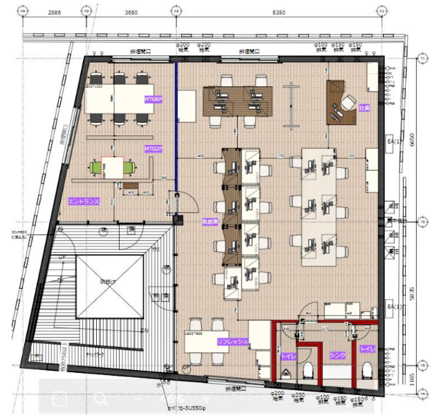
こちらが現テナントが利用されているレイアウト図面。
上部では説明がございませんでしたが、図面をご覧の通りシンクと男女別のお手洗いももちろんございます。
今回は什器もついた居抜き入居が可能な物件で、他の居抜き募集のオフィスと比べても初期費用や撤去費用が大幅に削減できるメリット付き。
人気の代官山エリアで是非この機会にオフィスを構えられてはいかがでしょうか。
管理番号:S142120
賃料:
管理費:
住所:渋谷区代官山町
広さ:140.04㎡
アクセス:東急東横線「代官山駅」徒歩4分、JR山手線・東京メトロ日比谷線「恵比寿駅」徒歩10分
構造:鉄筋コンクリート造・地下1階地上3階建 2階部分
築年:2016年
敷金・保証金:
礼金:
備考:普通借家2年契約、保証会社加入要、借家人賠償責任保険加入要、退去時原状回義務有(条件交渉可)
〈上記以外で契約時に掛かる主な費用〉
・仲介手数料(賃料1ヶ月分税別)
・前家賃(1ヶ月分)
・日割り家賃(月途中での賃料発生の場合)
・初回保証委託料(賃料合計の最大100%)
・火災保険料
The following two tabs change content below.
SOHOオフィスのファインディング、コンテンツ制作、リーシングを担当。
立教大学を卒業後、出版社でライフスタイル誌の企画、取材、撮影などに従事。同誌のウェブマガジン立ち上げ、コンテンツ制作を経てトランスリアルに参画。趣味は映画と音楽とトレーニング。
最新記事 by 辰口 (全て見る)
-
渋谷、家具・会議室付きデザイナーズオフィス
[渋谷区/145万〜/114㎡] - 2026年1月30日 -
渋谷6分、敷金0、会議室付のハーフセットアップ
[渋谷区/142万/114㎡] - 2026年1月30日 -
築地駅の出口前、カフェ風セットアップ
[中央区/69万/85㎡] - 2026年1月29日 -
大塚駅5分、会議室付シンプルデザイナーズオフィス
[豊島区/91万/152㎡] - 2026年1月27日 -
恵比寿駅4分、家具付き築浅デザイナーズ
[渋谷区/165万/124㎡] - 2026年1月26日
