物件のポイント
- 六本木駅徒歩11分・乃木坂駅徒歩12分
- 港区西麻布2エリア
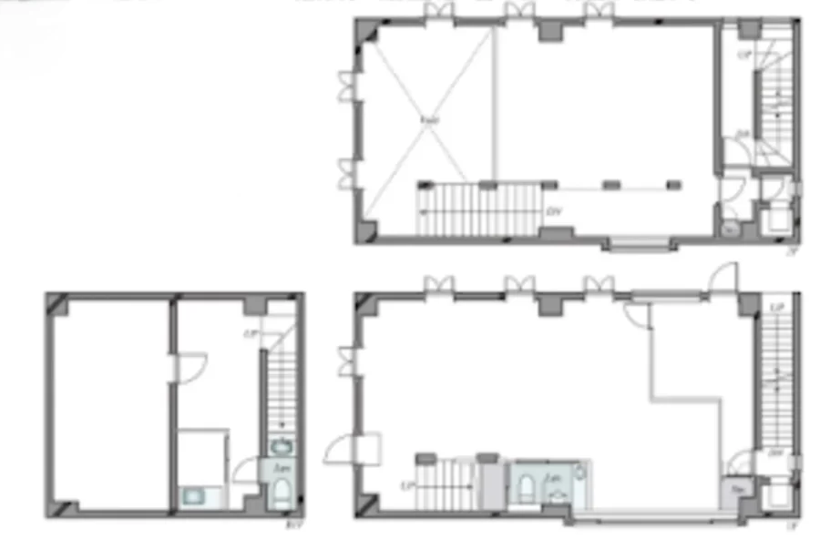
- B1F-2F 155.52㎡(47.04坪)のオフィス空間
- RC造 地下1階付地上3階建、2002年築
- 賃料 B1F-2F ¥818,182(税込 ¥900,000)
物件の特徴

管理番号:S301647
西麻布2丁目、吹き抜けを活かした利用方法を考えたい一棟貸し可能ビル。用途に応じて自由度の高い使い方を。
六本木・乃木坂・広尾の中間に位置する西麻布エリア。
落ち着いた街並みと感度の高い店舗が点在するこの立地で、一棟物件のご紹介です。約47坪の広さに加え、地下倉庫・店舗利用可能区画・居住スペースと、多様な機能を内包した構成。オフィスだけでなく、ビジネスの可能性を広げてくれる一棟です。
落ち着いた街並みと感度の高い店舗が点在するこの立地で、一棟物件のご紹介です。約47坪の広さに加え、地下倉庫・店舗利用可能区画・居住スペースと、多様な機能を内包した構成。オフィスだけでなく、ビジネスの可能性を広げてくれる一棟です。

ベージュトーンの外壁にアーチ型の窓が印象的な、落ち着きのある外観。
クラシカルな雰囲気を感じさせながらも品のある佇まいで、来客のある業態やブランドイメージを大切にしたいビジネスにも適した建物です。
クラシカルな雰囲気を感じさせながらも品のある佇まいで、来客のある業態やブランドイメージを大切にしたいビジネスにも適した建物です。
⬇︎B1~2階

室内はフロアごとに表情が異なり、用途に応じた使い分けがしやすい空間に仕上がっています。
1階・2階は広々とした空間で、執務スペースや来客対応、ショールームとしても活用可能です。ロフトや吹き抜けのある空間は、視覚的な広がりとデザイン性を感じさせます。
1階・2階は広々とした空間で、執務スペースや来客対応、ショールームとしても活用可能です。ロフトや吹き抜けのある空間は、視覚的な広がりとデザイン性を感じさせます。


アーチ状の開口が印象的な白を基調としたシンプルな空間と、石目調で統一された重厚感のある空間。多様な表情を持つ物件は用途ごとに使い分けることで幅広いビジネスに対応可能です。さらに地下1階は倉庫として利用でき、在庫管理やバックヤード機能も確保されています。
⬇︎3階


3階部分は居住用としても使える落ち着いた内装で、ワークスペースとプライベートを分けた使い方も可能。

木目のフローリングが広がる室内は、やわらかな自然光に包まれた落ち着きのある空間。
シンプルな内装で家具の配置もしやすく、執務スペースやリラックススペースとして柔軟に使い分けが可能です。
シンプルな内装で家具の配置もしやすく、執務スペースやリラックススペースとして柔軟に使い分けが可能です。

L字型のキッチンは作業動線が確保されており、使い勝手の良い設計。
収納や調理スペースもしっかり確保されており、日常利用から来客時の対応まで幅広く活用できます。
収納や調理スペースもしっかり確保されており、日常利用から来客時の対応まで幅広く活用できます。

また、軽飲食の相談も可能なため、カフェ併設オフィスやショールーム型店舗など、発信力のある使い方にも適しています。複数フロアを活かして「接客・執務・バックヤード」を分けられる点は、事業運営において大きなメリットとなるはず。
さらにSOHO利用にも対応しており、住まいと仕事を一体で構築できる点も魅力的。
一棟で完結する機能性を活かし、新しい働き方を実現したい方におすすめの物件です。
一棟で完結する機能性を活かし、新しい働き方を実現したい方におすすめの物件です。
賃貸条件
| 管理番号 | S301647 |
|---|---|
| 賃料 | B1F-2F ¥818,182(税込 ¥900,000) |
| 共益費 | なし |
| 住所 | 港区西麻布2 |
| 広さ | B1F-2F 155.52㎡(47.04坪) |
| アクセス | 都営大江戸線「六本木駅」徒歩11分、東京メトロ千代田線「乃木坂駅」徒歩12分、東京メトロ日比谷線「広尾駅」徒歩13分 |
| 構造・規模 | RC造 地下1階付地上3階建 |
| 築年 | 2002年 |
| 敷金 | 6ヶ月(償却1ヶ月) |
| 礼金 | 1ヶ月 |
| 備考 | 普通借家契約(2年間)、保証会社利用相談必須、火災保険必須、入居日:相談、更新料(新賃料の1ヶ月分)、軽飲食店利用:相談可、地下1階部分は倉庫(物品保管等)としてご利用下さい、3階部分(居住用)含め、一棟借り相談可 |
契約時にかかる主な費用
〈上記以外で契約時に掛かる主な費用〉
・仲介手数料(賃料1.1ヶ月分(税込))
・前家賃(1ヶ月分)
・日割り家賃(月途中での賃料発生の場合)
・初回保証委託料(賃料合計の最大100%)
・火災保険料
