
複数路線が利用できる好立地、内装費用を抑えて居抜きでの移転を
各線「渋谷駅」から徒歩圏内。
好立地で居抜き入居が可能なオフィスに募集ができましたのでご紹介です。
地下に駐車場もありますので、お車をご利用の方は是非チェックしてみてください。
ガラスがふんだんに使用されたクリーンな印象のファサード。
1階が店舗ですので目印に重宝しそうです。
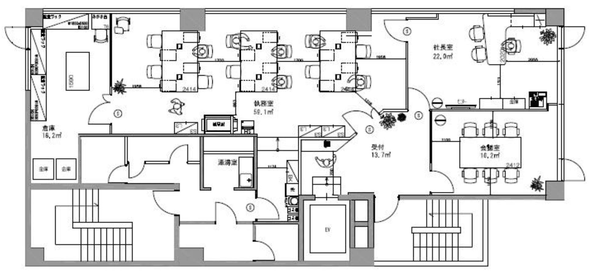
間取りは受付に執務室、2つの洋室といったレイアウト。
こちらが受付部分。
シックな色味で統一された重厚感のある印象です。
執務室は12名のデスクとチェアが設置されております。
現状はゆったりとしたゾーニングをしておりますので、入り口から見て奥の部分の倉庫を撤去することで20名近くまでレイアウトすることもできそうです。
内装に加え、写真の家具も引き継ぐことが可能。
会議室も6名用でしっかり完備。
好立地かつ居抜きで入居ができる本物件。
このエリアではなかなか見つからない駐車場も建物に完備です。
是非この機会にご移転をご検討されてみてはいかがでしょうか。
共益費:¥169,784(税込 ¥186,763)
住所:東京都渋谷区渋谷1
広さ:160.38㎡(48.51坪)
アクセス:JR山手線「渋谷駅」徒歩9分、東京メトロ副都心線「渋谷駅」徒歩6分、東京メトロ銀座線「表参道駅」徒歩7分
構造・規模:鉄筋コンクリート造 地下1階地上5階建 5階部分
築年:1993年
敷金:12ヶ月(保証会社の審査内容により減額の可能性有)
礼金:なし
備考:普通借家契約(2年間)、更新料(なし)、保証会社利用必須、火災保険必須





