
*店舗不可
東京メトロ副都心線「北参道駅」から徒歩5分
トレンドエリアに佇む開放的なワンルームオフィス
東京メトロ副都心線「北参道駅」徒歩5分、JR山手線「原宿駅」徒歩10分。
明治神宮や代々木公園の緑豊かなエリアにほど近く、新宿・渋谷など主要都市へのアクセス性も魅力の北参道。
クリエイティブな活動の拠点として人気のエリアより、開放的なワンルームオフィスが募集となりました。

角地に面する大きな窓面が印象的な、視認性抜群の1階区画。
周辺には感度の高いカフェやショップも点在しており、トレンドを意識した展開にも最適な立地です。
周辺には感度の高いカフェやショップも点在しており、トレンドを意識した展開にも最適な立地です。

木目調のタイルカーペットと白塗りの壁で構成されたナチュラルな内装デザイン。
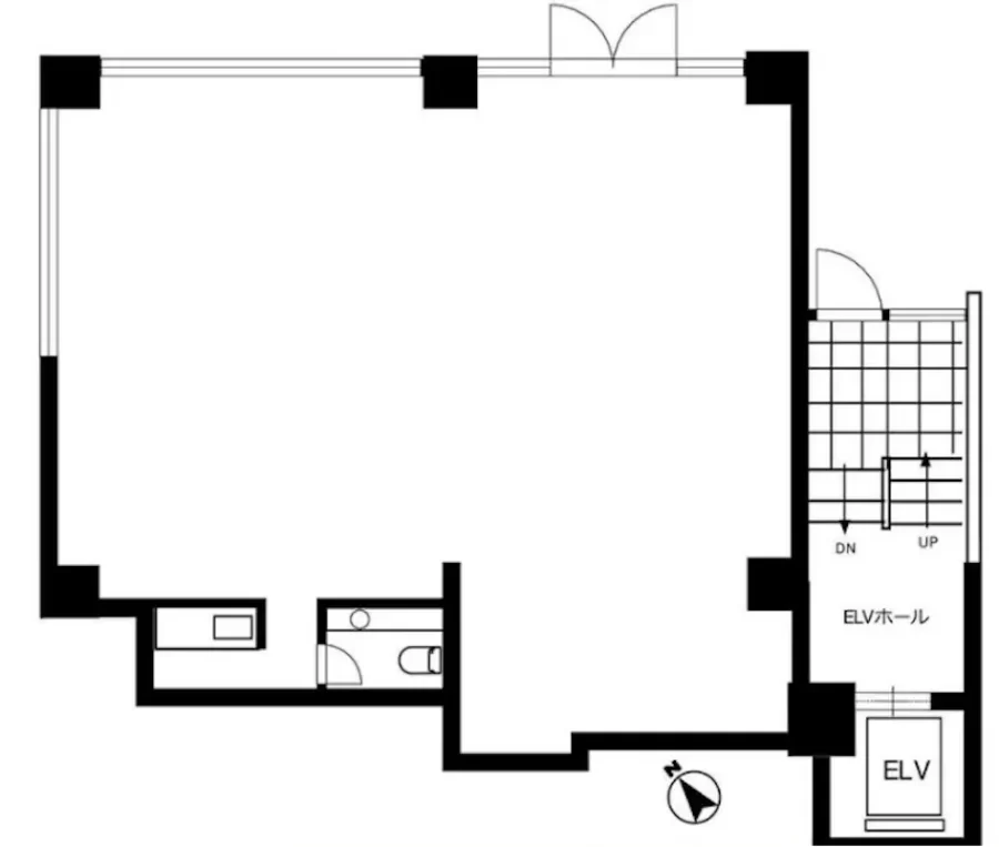
広さは約75㎡と、10名前後のワークスペースとして十分なサイズ感です。

主要な開口部は北面になりますが、圧巻の開放感を感じさせる設計。
店舗利用は不可の物件になりますが、自社スタジオやショールームとしても最適な印象です。
店舗利用は不可の物件になりますが、自社スタジオやショールームとしても最適な印象です。

天井のライティングレールや空調設備、窓枠に至るまではブラックで統一。
細部までデザインに配慮されたディテールが、空間全体に落ち着きと引き締まった印象を与えています。

水回りについても最小限かつコンパクトに集約されているため、有効スペースの十分に確保されています。
<1階>


都心へのアクセス性が良好な北参道エリアに佇む、シンプルなワンルームオフィス。
ショールーム利用などで物件をお探しのクリエイティブ業のお客様に特におすすめしたい一室となっています。
賃料: ¥545,454(税込600,000)
共益費:賃料に含む
住所:渋谷区千駄ヶ谷2
広さ:75.38㎡(約22.8坪)
アクセス:東京メトロ副都心線「北参道駅」徒歩5分、JR山手線「原宿駅」徒歩10分、JR中央総武線各駅停車「千駄ヶ谷駅」徒歩10分
構造・規模:鉄筋コンクリート造 地上6階建 2階部分・4階部分
築年:1995年
敷金:6ヶ月
礼金:1ヶ月
備考:定期賃貸借契約(2年間)、再契約相談可(再契約料:新賃料の1ヶ月分)、再契約時事務手数料あり(新賃料の0.25ヶ月分)保証会社利用必須、火災保険必須
共益費:賃料に含む
住所:渋谷区千駄ヶ谷2
広さ:75.38㎡(約22.8坪)
アクセス:東京メトロ副都心線「北参道駅」徒歩5分、JR山手線「原宿駅」徒歩10分、JR中央総武線各駅停車「千駄ヶ谷駅」徒歩10分
構造・規模:鉄筋コンクリート造 地上6階建 2階部分・4階部分
築年:1995年
敷金:6ヶ月
礼金:1ヶ月
備考:定期賃貸借契約(2年間)、再契約相談可(再契約料:新賃料の1ヶ月分)、再契約時事務手数料あり(新賃料の0.25ヶ月分)保証会社利用必須、火災保険必須
〈上記以外で契約時に掛かる主な費用〉
・仲介手数料(賃料1.1ヶ月分(税込))
・前家賃(1ヶ月分)
・日割り家賃(月途中での賃料発生の場合)
・初回保証委託料(賃料合計の最大100%)
・火災保険料





