白金、スタジオ向きの天高倉庫風ホワイト空間
募集中
港区46104白金高輪駅 徒歩8分

白金、スタジオ向きの天高倉庫風ホワイト空間

オフィス紹介

物件のポイント

  • 港区白金3エリア
  • 104.11㎡(31.49坪)のオフィス空間
  • 鉄筋コンクリート造 地上3階建 3階部分、1969年築
  • 賃料 ¥460,000(税込¥506,000)

物件の特徴

白金、スタジオ向きの天高倉庫風ホワイト空間 室内

 

管理番号:S302035

港区・白金エリア。
白金高輪駅徒歩8分、約31坪の天高倉庫風の事務所・フォトスタジオ向け物件。

*外部貸しの場合は必ず借主社員が常駐すること。
*動画撮影・音楽スタジオその他、音・振動が発生する業種は不可。

港区白金の住宅街に佇むRC造3階建ての最上階に、約104㎡のオフィス・フォトスタジオ向けの物件が登場しました。
天井高は最大3mと、倉庫のような開放的な空間が最大の特徴で、スチール鉄骨の構造がそのまま見える無骨なデザインが、クリエイティブな業種のワークスペースに最適です。白金、スタジオ向きの天高倉庫風ホワイト空間 室内メインスペースは白く塗装されたスチール構造の天井が特徴的で、倉庫コンバージョンを思わせる開放的な空間です。
約3m天高を活かした大空間は撮影スペースとしての利用にも適しています。白金、スタジオ向きの天高倉庫風ホワイト空間 室内複数の窓から自然光が差し込み、明るく清潔感のある室内環境が保たれています。床はコンクリート仕上げで、什器やセットの搬入・設置にも便利な仕様です。白金エリアでこれだけの天高と広さを備えた賃貸オフィスは希少な存在といえるでしょう。
事務所としてデスクを並べる使い方はもちろん、クリエイティブなビジネスの拠点としても活用できます。白金、スタジオ向きの天高倉庫風ホワイト空間 室内メインスペースとは別に、木目調フローリングの個室スペースも備わっています。控室として利用がイメージできそう。
バルコニーに面した大きな掃き出し窓からは自然光がたっぷりと入り、明るい空間です。オフィスであれば個室としてのミーティングルームや、集中作業スペース、休憩室など、多目的に活用できます。メインスペースとの使い分けで、より効率的なオフィス運営が実現します。白金、スタジオ向きの天高倉庫風ホワイト空間 室内

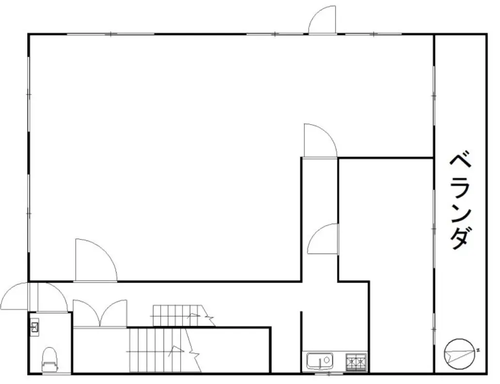
階段を上がった3階のワンフロアを贅沢に使える間取りで、約104㎡(約31坪)の面積を自由にレイアウトできます。
大空間を活かしつつ、個室でプライバシーも確保できる、バランスの取れた間取りです。
ポテンシャルのある白箱をぜひお早めにご検討ください。

 

賃貸条件

管理番号 S302035
賃料 ¥460,000(税込¥506,000)
共益費 なし
住所 港区白金3
広さ 104.11㎡(31.49坪)
アクセス 東京メトロ南北線・都営三田線「白金高輪」駅 徒歩8分、東京メトロ日比谷線「広尾」駅 徒歩15分
構造・規模 鉄筋コンクリート造 地上3階建 3階部分
築年 1969年
敷金 3ヶ月(業種によって変動あり)
礼金 3ヶ月
備考 定期借家契約(2年間)、保証会社利用必須、火災保険加入必須、動画撮影・音楽スタジオその他 音・振動が発生する業種不可、再契約料(新賃料の1ヶ月分+再契約事務手数料+消費税)、エレベーターなし、外部貸しの場合は必ず借主社員が常駐すること、残置物(エアコン3台、キッチン一式、トイレ一式、給湯器、換気扇、洗面台、インターホン、可動式棚)

契約時にかかる主な費用

〈上記以外で契約時に掛かる主な費用〉
・仲介手数料(賃料1.1ヶ月分(税込))
・前家賃(1ヶ月分)
・日割り家賃(月途中での賃料発生の場合)
・初回保証委託料(賃料合計の最大100%)
・火災保険料

物件概要

管理番号

S2604-1WF6

募集区画

3階

賃料

¥460,000(税込 ¥506,000

共益費

要相談

敷金

3ヶ月

礼金

3ヶ月

広さ

104.11㎡ (31.49坪)

物件種目

事務所

特徴カテゴリ

-

構造・規模

鉄筋コンクリート造 地上3階建

築年

1969年

入居可能時期

-

住所

港区

地図を読み込み中...

東京メトロ南北線 白金高輪駅 徒歩8分、都営三田線 白金高輪駅 徒歩8分、東京メトロ日比谷線 広尾駅 徒歩15分

備考

-

オフィスの見学や

お問い合わせはこちら

この記事を書いた人
瀬川真生瀬川真生