物件をブックマーク
管理番号:S133266
*写真は似た間取りの別部屋のもの。異なる場合は現況優先になります。
*2026年2月上旬入居可能予定。
*現在は2Fのみ募集中。
千代田区東神田エリア、高い天井とデザイナーズな内装
ターミナル駅近いでフレキシブルに働く
日比谷線「秋葉原駅」から徒歩9分。
他、2線2駅も徒歩圏内で多方面へのアクセスが便利な好立地のリノベオフィスのご紹介です。
シンプルながらデザイン性と使い勝手が考えられたこだわりの内装は必見です。
エレベーターから降りてすぐにはご覧のように受付を設置できるエリアがございます。
モノトーン調の色使いのクロスでまとめられ、高級感ある空間が広がります。
今回のリノベーションでは壁や床はもちろん天井も全てフルリニューアルされ生まれ変わりました。
天井は躯体表し仕様になり3,350mmの高さに、床は利便性のいいOAフロアへコンバージョンされました。
室内の広さは18名程度でゆったり使うことができ、20名程度でも十分使えそうなサイズ感です。
会議スペースは8名程度で使用できる広さ感。
ガラス張りにすることで個室ながら圧迫感がございません。
もし中が見られているということが気になるのであれば、目隠しが可能なシートを貼れば問題ないかと。
水回りはもちろんリノベーションされているので新品です。
トイレは男女別で2つございます。
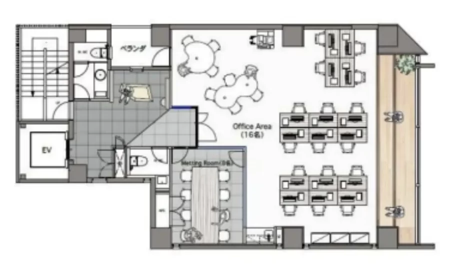
2F図面
近年着実に市民権を得てきたリノベーションオフィス。
特に今回のオフィスは天井高も3,300mm以上かつ洗練された空間が広がるプレミアム仕様です。
違うエリアでお探しの方も、基本23区内であればアクセスがいい立地に位置しているので是非1度検討されてみてはいかがでしょうか。
管理番号:S133266
賃料:2F/¥792,000(税込 ¥871,200)
管理費:賃料に含む
住所:千代田区東神田
広さ:2F/116.38㎡(35.2坪)
アクセス:日比谷線「秋葉原駅」徒歩9分、新宿線「岩本町駅」徒歩9分、総武線線「浅草橋駅」徒歩8分
構造:鉄骨・鉄筋コンクリート造8階建 2階部分
築年:2002年
敷金:6ヶ月
礼金:なし
備考:普通借家契約(2年)、保証会社加入必須・火災保険加入必須、天高3.35m、男女別トイレ
〈上記以外で契約時に掛かる主な費用〉
・仲介手数料(賃料1ヶ月分税別)
・前家賃(1ヶ月分)
・日割り家賃(月途中での賃料発生の場合)
・初回保証委託料(賃料合計の最大100%)
・火災保険料
最新記事 by 村山 (全て見る)
-
大手町、フォーマルライクなセットアップオフィス
[千代田区/102万/105㎡] - 2026年1月23日 -
五反田エリア、機能性が整ったハーフセットアップ
[品川区/126万/200㎡] - 2026年1月23日 -
明治神宮前、美しいデザインの居抜きオフィスで働く
[渋谷区/77万/100㎡] - 2026年1月23日 -
九段下、借景を愛でる開放感抜群の築浅オフィス
[千代田区/82万〜/128㎡〜] - 2026年1月20日 -
赤坂・乃木坂のフルリノベーションデザインオフィス
[港区/27万/49㎡]
- 2026年1月20日
