北青山、ガラスウォールのメゾネットSOHO
募集中
港区94万130青山一丁目駅 徒歩3分

北青山、ガラスウォールのメゾネットSOHO

オフィス紹介

※ 2026年3月中旬入居可能予定。(内覧は調整の上可能)
※ 写真は今回募集の会とは別の階の様子も含まれております。現況と異なる場合は現況優先
 
青山通り沿いの外観・内装ともに特徴的なデザイナーズ物件をご紹介。
明治神宮外苑から新宿方面を一望できるハイサイドガラスウォールのメゾネットは100㎡オーバー、開放的でダイナミックな空間だ。
volt_aoyama1chome_duals-902-facade-01-sohotokyo
青山通り沿いの今回の物件は青山一丁目駅から徒歩4分、SHAKE SHACKのある外苑前銀杏並木の手前駅側に位置している。
鉄骨が組み合わされた特徴的なファサードをご存じの方も多いのではないだろうか。
volt_aoyama1chome_duals-902-hall-02-sohotokyo
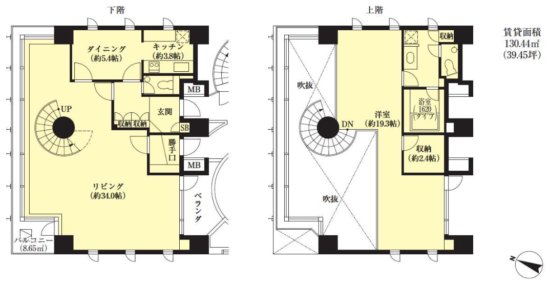
1Fから円形の吹抜けが物件の中心を上下に貫く。
各フロア2部屋ずつ、3F以上は全てメゾネットタイプという贅沢な構成になっている
volt_aoyama1chome_duals-902-room-08-sohotokyo
室内のプランは一応1LDKタイプになるが、住居用のその呼称はあまり意味を為さないかもしれない。
LDKは45帖の広さ、吹抜け部分は天井高5mほど、その吹抜け部分はハイサイドガラスで神宮外苑方面を一望できてしまう。
volt_aoyama1chome_duals-902-room-07-sohotokyo
ワークスペースとして考えると10人程度は問題のない広さだろうか。
天井が高く、バルコニー側と神宮外苑側がガラスウォールで抜けているので開放感は抜群だ。
45帖と聞くと感覚的にはもう少し多い人数でも対応できそうだが、やや中途半端な位置にある螺旋階段より先の空間はワークスペースには適さないように感じた。
volt_aoyama1chome_duals-902-room-05-sohotokyo
ダイナミックな空間においてやや残念なのが味気のないグレーのタイルカーペット。
フローリングを貼るのはコスト的にもいささか大変だが、黒などシックな色味でグレード高めなものをチョイスしたくなってしまう。
volt_aoyama1chome_duals-902-room-019-sohotokyo
上層階から見下ろす景色もなかなかのものだ。
上層階はやや不整形な19.1帖の空間、8帖+8帖の空間が互い違いに一部組み合わさっているイメージだ。
この部分もレイアウトの工夫が必要だろう。
volt_aoyama1chome_duals-902-bathroom-01-sohotokyo
トイレは各階層に1個づつ、キッチンは下層部・バスルームは上層部という構成の水回り。
立地や賃料的には事務所の利用が大半だろう、しかし設備的には居住することも可能となっている。
物件内にはアパレルのショールームなども入居しており、オフィス・SOHOだけでなくサービス店舗といった形態もご相談可能。
青山アドレスの駅近、そして高層階の抜け感とデザイン性の高い空間を味わえる貴重な物件であることは間違いない。
 

賃料:¥986,250(非課税)
共益費:賃料に含む
住所:港区北青山1
広さ:130.44㎡(39.45坪)
アクセス:銀座線・半蔵門線・大江戸線「青山一丁目駅」徒歩4分
構造・規模:SRC造12階建て 11・12階部分
築年:2001年
敷金・保証金:5ヶ月
礼金:1ヶ月
備考:定期借家契約(2年間)、再契約料(1ヶ月)、火災保険必須、保証会社加入必須、

〈上記以外で契約時に掛かる主な費用〉
・仲介手数料(賃料1ヶ月分税別)
・前家賃(1ヶ月分)
・日割り家賃(月途中での賃料発生の場合)
・初回保証委託料(賃料合計の最大100%)
・火災保険料

物件概要

管理番号

S2602-LHXE

募集区画

1102

賃料

¥946,800(非課税)

共益費

¥0(非課税)

敷金

5ヶ月

礼金

1ヶ月

広さ

130.44㎡ (39.46坪)

物件種目

事務所、マンション

特徴カテゴリ

メゾネット、デザイナーズ

構造・規模

鉄骨鉄筋コンクリート造 地上12階建

築年

2001年

入居可能時期

-

住所

港区

地図を読み込み中...

都営大江戸線 青山一丁目駅 徒歩3分

備考

-

オフィスの見学や

お問い合わせはこちら

この記事を書いた人
木内木内