物件をブックマーク
管理番号:S280985
芝公園駅まで徒歩2分。
家具付きかつスマートな動線設計、チーム利用にも最適なワークスペース
都営三田線「芝公園駅」まで徒歩2分。JR山手線「浜松町駅」、都営大江戸線「大門駅」なども利用可能。
複数路線が使えることで、都心主要エリアへのアクセスが良く、通勤や来客対応もスムーズです。
上質な内装が施されたセットアップオフィスをご紹介します。
複数路線が使えることで、都心主要エリアへのアクセスが良く、通勤や来客対応もスムーズです。
上質な内装が施されたセットアップオフィスをご紹介します。

外観は柔らかな曲線が目を引く、スタイリッシュなデザイン。
グレーのタイルを基調とした落ち着いたトーンが、周囲のビル群と調和しつつも洗練された存在感を放っています。
建物入口まわりもすっきりと整えられ、清潔感と安心感を与える印象です。
グレーのタイルを基調とした落ち着いたトーンが、周囲のビル群と調和しつつも洗練された存在感を放っています。
建物入口まわりもすっきりと整えられ、清潔感と安心感を与える印象です。

執務室内は窓面も大きく、日中は自然光が差し込む明るい環境で、快適さと視覚的な開放感が両立された空間です。
ミーティングスペースとのゾーニングもしっかりと分けられており、集中とコミュニケーションのバランスがとれたレイアウト設計となっています。
ミーティングスペースとのゾーニングもしっかりと分けられており、集中とコミュニケーションのバランスがとれたレイアウト設計となっています。
内装はグレーを基調としたモダンで落ち着いたトーンで統一されており、空間全体に高級感と静けさが漂います。天井はスケルトン仕上げで開放感があり、ライティングレールに沿って配置された直線的なLED照明が、洗練された雰囲気をさらに引き立てます。

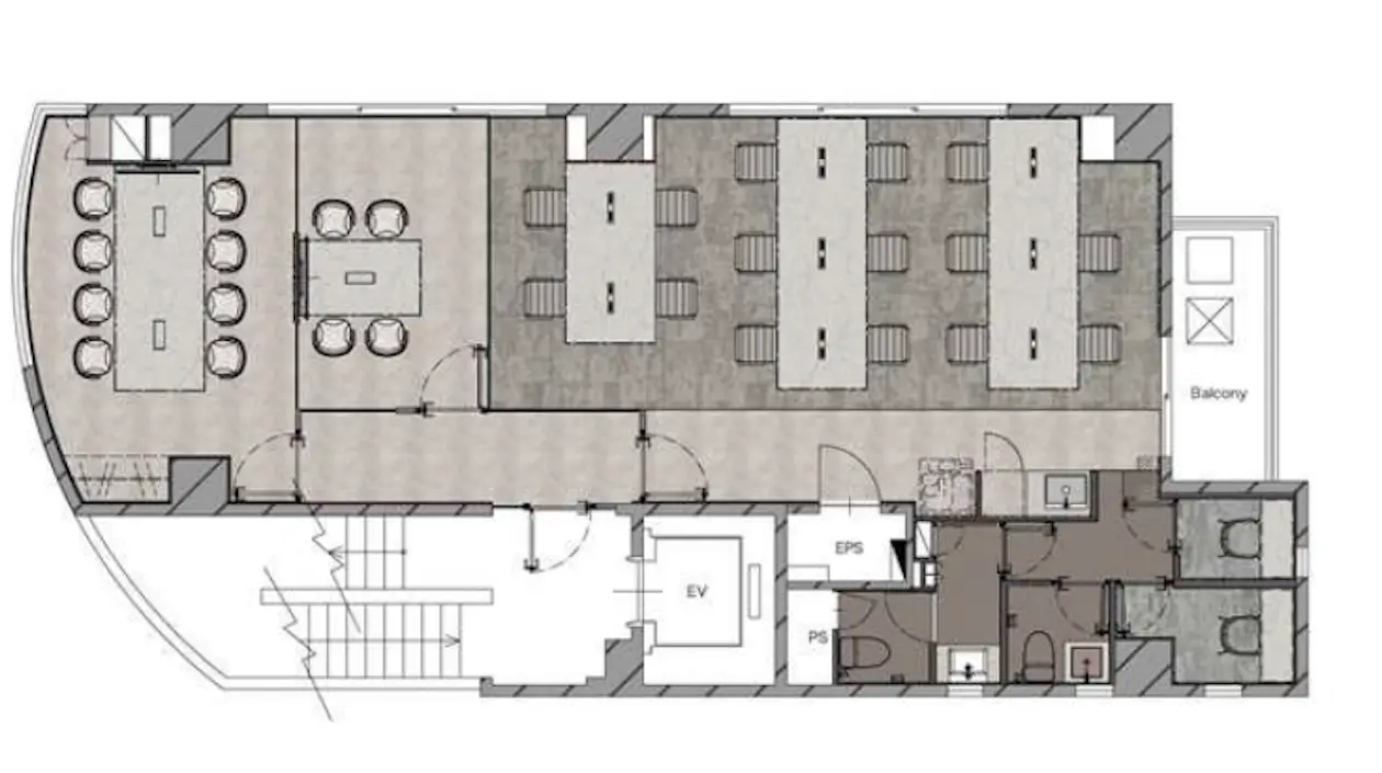
什器もすでに設置済みで、16名程度での利用が想定された座席配置となっています。
電源やネットワーク環境も整備されており、入居後すぐに業務を開始できる“即始動”が可能なのもセットアップオフィスの利点と言えるでしょう。
電源やネットワーク環境も整備されており、入居後すぐに業務を開始できる“即始動”が可能なのもセットアップオフィスの利点と言えるでしょう。

奥には打ち合わせに適した会議室や個別ブースもあり、チームでの集中作業とコミュニケーションのバランスも取れる構成。
デザイン性だけでなく、実用性にも配慮されています。
デザイン性だけでなく、実用性にも配慮されています。

水回りは清潔感ある、コンパクトな設備は備わっています。
2F

洗練されたモノトーンデザインと機能的なレイアウトが融合した上質なオフィス空間。
集中とコミュニケーションの両立が図れる環境が備わった空間で、ビジネスをスマートにスタートさせましょう。
管理番号:S280985
賃料:
共益費:
住所:港区芝2
広さ:2F 96.62㎡(29.22坪)
アクセス:都営三田線「芝公園駅」徒歩2分、都営大江戸線「大門駅」徒歩9分、JR山手線「浜松町駅」徒歩9分
構造・規模:SRC造 地上7階建 2,3,4階部分
築年:1988年
敷金:
礼金:
備考:普通借家契約(2年間)、12ヶ月間解約不可(12ヶ月以内の解約時、違約金あり)、保証会社利用必須、火災保険必須、クリーニング費用(¥200,000/入居時)、清掃契約(貸主指定)
賃料:
共益費:
住所:港区芝2
広さ:2F 96.62㎡(29.22坪)
アクセス:都営三田線「芝公園駅」徒歩2分、都営大江戸線「大門駅」徒歩9分、JR山手線「浜松町駅」徒歩9分
構造・規模:SRC造 地上7階建 2,3,4階部分
築年:1988年
敷金:
礼金:
備考:普通借家契約(2年間)、12ヶ月間解約不可(12ヶ月以内の解約時、違約金あり)、保証会社利用必須、火災保険必須、クリーニング費用(¥200,000/入居時)、清掃契約(貸主指定)
〈上記以外で契約時に掛かる主な費用〉
・仲介手数料(賃料1.1ヶ月分(税込))
・前家賃(1ヶ月分)
・日割り家賃(月途中での賃料発生の場合)
・初回保証委託料(賃料合計の最大100%)
・火災保険料
The following two tabs change content below.
SOHOオフィスのファインディング、コンテンツ制作、リーシングを担当。
新潟生まれ。大学卒業後、アイウェア企業に入社。店舗での店長経験などを経てトランスリアルに参画。
最新記事 by 村山 (全て見る)
-
九段下、借景を愛でる開放感抜群の築浅オフィス
[千代田区/82万〜/128㎡〜] - 2026年1月20日 -
赤坂・乃木坂のフルリノベーションデザインオフィス
[港区/27万/49㎡]
- 2026年1月20日 -
銀座、入居者同士の繋がりを生み出すリノベオフィス
[中央区/36万/21㎡] - 2026年1月16日 -
人形町、屋上テラスと2つの会議室付きセットアップ
[中央区/149万/202㎡] - 2026年1月16日 -
代々木エリア、L字型、築浅デザイナーズ
[渋谷区/66万/74㎡] - 2026年1月16日
