物件をブックマーク
管理番号:S293850
大門徒歩4分、会議室・テレカンブース付き、敷金礼金なしでフルセットアップオフィスへ移転する。
「大門駅」徒歩4分、羽田空港へのアクセスをはじめ、都内各所へ素早く移動できる利便性の高さから人気のビジネスエリア。
2025年7月にセットアップにリニューアルされた、余白のあるデザインが印象的なワークプレイスをご紹介します。
ガラス面を大きく取った外壁が特徴で、明るく開放的な印象が伝わります。周囲にはオフィスビルが建ち並び、スマートなロケーションですが、エントランス周りには植栽が置かれ、デザイン性と清潔感のある佇まいになっています。

こちらはエントランスです。白を貴重とした内装に柔らかくカーブした壁が優しい動線を作り、無機質になりすぎないバランス。
このエントランスなら来客の多い業種の方でも安心してお客様を迎えられそうです。

淡いベージュのチェアと木目デスクを組み合わせた、ナチュラルでミニマルな執務室。
大型のデスクが中央にあり、10名前後のチームでも十分対応可能です。

スケルトン天井なので開放感がありつつも、集中できる落ち着いた空間です。
クリエイティブ・IT系のプロジェクトチームや、初期オフィスとしての利用に適したサイズ感。

こちらは1名用のテレカンブース。ガラススリットの入った窓により、圧迫感をおさえつつオンラインの商談やミーティングを快適に行えます。
手前にはハンガーラックもあり、実用性に富んでいます。

こちらは1階の会議室。淡いベージュとグレイトーンでまとめられ、余白を生かしたスッキリした印象。
4名での利用が可能で、オンライン会議などに便利なモニターも完備しています。
2階にも会議室があり、そちらは6名で使用することが出来ます。
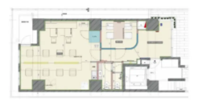
1F

2F

「大門駅」徒歩4分、都心へのアクセスが良好で、“使いやすさ” と “雰囲気の良さ” の両立を目指したこのセットアップ。
また敷金礼金0で最大限イニシャルコストを削減できるのも魅力。
ブランドイメージを大切にする企業や、少人数で質の高い仕事を進めたいチームにとって
ブランドイメージを大切にする企業や、少人数で質の高い仕事を進めたいチームにとって
ちょうどいいサイズ感と心地よいデザインが揃った一室といえるでしょう。
管理番号:S293850
賃料:1F/¥630,000(税込¥693,000)
賃料:1F/¥630,000(税込¥693,000)
2F/¥680,000(税込 ¥748,000)
共益費:賃料に含む
住所:港区芝大門1
広さ:1階 61.33㎡(18.55坪)
共益費:賃料に含む
住所:港区芝大門1
広さ:1階 61.33㎡(18.55坪)
広さ:2階 66.14㎡(20坪)
アクセス:都営大江戸線「大門駅」徒歩4分、都営浅草線「大門駅」徒歩4分、都営三田線「御成門駅」徒歩6分、JR山手線「浜松町駅」徒歩8分、JR京浜東北線「浜松町駅」徒歩8分
構造・規模:RC造 地上9階建 1階・2階部分
築年:2024年
敷金:なし
礼金:なし
備考:普通借家契約(2年間)、保証会社利用必須、火災保険必須、契約開始より12ヶ月間解約不可、クリーニング費用(入居時:¥200,000)、Wi-Fiパスワード変更時(入居時:¥15,000)、原状回復義務なし(現状変更した場合や破損等を除く)、2025年7月、内装造作付きセットアップ工事完了
アクセス:都営大江戸線「大門駅」徒歩4分、都営浅草線「大門駅」徒歩4分、都営三田線「御成門駅」徒歩6分、JR山手線「浜松町駅」徒歩8分、JR京浜東北線「浜松町駅」徒歩8分
構造・規模:RC造 地上9階建 1階・2階部分
築年:2024年
敷金:なし
礼金:なし
備考:普通借家契約(2年間)、保証会社利用必須、火災保険必須、契約開始より12ヶ月間解約不可、クリーニング費用(入居時:¥200,000)、Wi-Fiパスワード変更時(入居時:¥15,000)、原状回復義務なし(現状変更した場合や破損等を除く)、2025年7月、内装造作付きセットアップ工事完了
〈上記以外で契約時に掛かる主な費用〉
・仲介手数料(賃料1.1ヶ月分(税込))
・前家賃(1ヶ月分)
・日割り家賃(月途中での賃料発生の場合)
・初回保証委託料(賃料合計の最大100%)
・火災保険料
The following two tabs change content below.
SOHOオフィスのファインディング、コンテンツ制作、リーシングを担当。
東京生まれ。俳優として舞台、映像作品、CMなど250作品以上に出演。舞台脚本家、演出家として15作品の制作を経て、トランスリアルに参画。
最新記事 by 和久井 (全て見る)
-
人形町、清洲橋通りの角地セットアップオフィス
[中央区/155万/201㎡] - 2025年12月10日 -
品川、無垢の風合い感じる居抜きオフィス
[品川区/136万/239㎡]
- 2025年12月8日 -
四谷三丁目、開放的なバルコニー付きSOHO
[新宿区/28万~/48㎡~] - 2025年12月8日 -
吉祥寺、公園通り沿いのデザイナーズオフィス・店舗
[武蔵野市/63万/70㎡] - 2025年12月5日 -
恵比寿、専用テラス付、敷金礼金なしのセットアップ
[渋谷区/140万/93㎡] - 2025年12月5日
