物件をブックマーク
管理番号:S189844
銀座線・半蔵門線・千代田線の「表参道駅」より徒歩6分。
人気の骨董通りから1本入った、閑静な立地のデザイナーズ物件のご紹介です。
重厚感溢れるブラウンのサファード。
滑らかなアーチを描いた窓枠が印象的です。
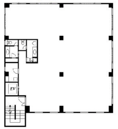
3Fの約240㎡のワンフロアの区画が募集中です。
室内は今回の募集でデザイナーズ仕様に新規でリノベーションされました。
スケルトンにすることで高さが出た天井は約3mほどで開放的。
床は木目調のフロアタイルに、壁は白に塗装することでモダンな感じになりました。
中央に2本の柱があるためレイアウトは少々考える必要がありそうですが、綺麗なスクエアな間取りはデッドスペースも少なく様々な業種にフィットするかと。
お手洗いは前のテナントがリノベしたものになりますがとても綺麗。
男女分かれている上に非常にスタイリッシュで清潔感も抜群です。
またキッチンスペースも扉で隔てられ、来客などの目につかない安心した設計になっております。
本物件には駐車場はございませんが、すぐ近くに大型なコインパーキングや道路沿いにはパーキングメーターもあるのでお車での来客などにも対応できそうです。
最近骨董通り付近ではミドルサイズのオフィスもあまり出てきておりませんので、ぜひこの機会にご検討されてみてはいかがでしょうか。
管理番号:S189844
賃料:
共益費:
広さ:239.86㎡
住所:港区南青山5
アクセス:銀座線・半蔵門線・千代田線「表参道駅」徒歩6分
構造規模:鉄筋コンクリート造地上3階建
築年月:1988年
敷金:
礼金:
備考:普通借家契約2年(更新料:新賃料の1ヶ月分)、火災保険加入必須
〈上記以外で契約時に掛かる主な費用〉
・仲介手数料(賃料1ヶ月分税別)
・前家賃(1ヶ月分)
・日割り家賃(月途中での賃料発生の場合)
・初回保証委託料(賃料合計の最大100%)
・火災保険料
最新記事 by 辰口 (全て見る)
-
水天宮前駅1分、ミニマルデザインのリノベオフィス
[中央区/69万/108㎡] - 2026年1月15日 -
西麻布で空とつながるSOHO物件、ルーフテラス付
[港区/36万/65㎡] - 2026年1月15日 -
三田、公園隣接の50名超規模ハーフセットアップ
[港区/392万/351㎡] - 2026年1月15日 -
大手町、希少なハイグレードビルのセットアップ区画
[千代田区/270万〜/115㎡〜] - 2026年1月14日 -
八丁堀3分、原状回復なし、上質な什器付オフィス
[中央区/62万/60㎡] - 2026年1月9日
