物件をブックマーク
管理番号:S293588
「東日本橋駅」徒歩5分。落ち着く街で見つける、機能とデザインが両立したSOHO空間
東日本橋駅からほど近い場所に、デザインと機能性を両立したセットアップオフィスが登場しました。
問屋街の落ち着きと、中央区らしいビジネス利便性が共存するこのエリアは、スタートアップや少人数のクリエイティブチームにも人気のロケーション。
問屋街の落ち着きと、中央区らしいビジネス利便性が共存するこのエリアは、スタートアップや少人数のクリエイティブチームにも人気のロケーション。

室内はホワイトと木目を基調とした、ナチュラルテイスト。
大きな窓からは外光がしっかり入り、タスクライトに頼り切らなくても明るさをキープできるのも嬉しいポイント。
採光の心地よさが、集中とリラックスを自然に切り替えてくれます。
採光の心地よさが、集中とリラックスを自然に切り替えてくれます。

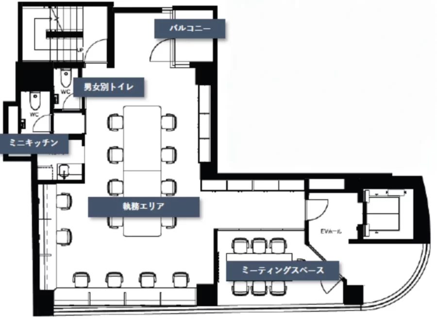
会議室は、圧迫感を抑えつつ視線をコントロールする絶妙なデザイン。
4〜6名まで対応可能で、来客対応・オンライン商談・社内MTGなど幅広く活躍します。
セットアップならではの完成度が高く、自社で追加工事をせずとも、しっかりとした打ち合わせ空間が整います。
4〜6名まで対応可能で、来客対応・オンライン商談・社内MTGなど幅広く活躍します。
セットアップならではの完成度が高く、自社で追加工事をせずとも、しっかりとした打ち合わせ空間が整います。

4階
3フロアには家具が設置されております。
階によって家具の色味を変えておりますのでお好みの応じてご選択可。
先着順ですのでこだわりのある方はぜひお早めにお問い合わせください。
5階
階によって家具の色味を変えておりますのでお好みの応じてご選択可。
先着順ですのでこだわりのある方はぜひお早めにお問い合わせください。
5階
6階
駐車場も1台ではございますがハイルーフ対応で建物に付随してございます。(空き要確認)

東日本橋アドレスで、これほど完成度の高いセットアップオフィスは多くありません。
ミーティングルームや什器、空間デザインまで整った内装は、初期コストを抑えつつも自社らしい働き方をすぐに実現できる環境です。
ミーティングルームや什器、空間デザインまで整った内装は、初期コストを抑えつつも自社らしい働き方をすぐに実現できる環境です。
アクセスの良さ、空間の心地よさ、そしてセットアップならではの機能性。
三拍子揃ったワークスペースをお探しの方は、ぜひ一度、現地でその雰囲気を体感してみてください。
三拍子揃ったワークスペースをお探しの方は、ぜひ一度、現地でその雰囲気を体感してみてください。
管理番号:S293588
賃料:¥650,000(税込 ¥715,000)
共益費:賃料に含む
住所:中央区東日本橋2
広さ:3-9F/98.67㎡(29.85坪)
アクセス:都営浅草線「東日本橋駅」徒歩5分、JR線「馬喰町駅」徒歩5分、JR線「浅草橋駅」徒歩7分
構造・規模:SRC造 地上9階建 2-9階部分
築年:1992年
敷金:なし
礼金:なし
備考:普通借家契約(2年間)、保証会社利用必須、火災保険必須、駐車場1台分あり(月額¥44,000)、FR3ヶ月
賃料:¥650,000(税込 ¥715,000)
共益費:賃料に含む
住所:中央区東日本橋2
広さ:3-9F/98.67㎡(29.85坪)
アクセス:都営浅草線「東日本橋駅」徒歩5分、JR線「馬喰町駅」徒歩5分、JR線「浅草橋駅」徒歩7分
構造・規模:SRC造 地上9階建 2-9階部分
築年:1992年
敷金:なし
礼金:なし
備考:普通借家契約(2年間)、保証会社利用必須、火災保険必須、駐車場1台分あり(月額¥44,000)、FR3ヶ月
〈上記以外で契約時に掛かる主な費用〉
・仲介手数料(賃料1.1ヶ月分(税込))
・前家賃(1ヶ月分)
・日割り家賃(月途中での賃料発生の場合)
・初回保証委託料(賃料合計の最大100%)
・火災保険料
The following two tabs change content below.
SOHOオフィスのファインディング、コンテンツ制作、リーシングを担当。
立教大学を卒業後、出版社でライフスタイル誌の企画、取材、撮影などに従事。同誌のウェブマガジン立ち上げ、コンテンツ制作を経てトランスリアルに参画。趣味は映画と音楽とトレーニング。
最新記事 by 辰口 (全て見る)
-
日本橋6分、高級感漂う和モダンオフィス
[中央区/24万/30㎡]
- 2025年12月16日 -
MIYASHITA PARK前、デザインフルセットアップ
[渋谷区/181万/136㎡] - 2025年12月15日 -
代官山の隠れ家SOHO、静かな創造空間
[渋谷区/53万/61㎡] - 2025年12月13日 -
神谷町6分、シンプル内装の会議室付きオフィス
[港区/99万/119㎡] - 2025年12月13日 -
神宮前5丁目、2LDK+DENの低層デザイナーズSOHO
[渋谷区/78万/119㎡]
- 2025年12月10日
