物件をブックマーク
管理番号:S186292
「新富町駅」より徒歩2分、「八丁堀駅」より徒歩4分、「築地駅」より徒歩6分。
3つの駅からのアクセスが可能な好立地。
今回の募集で新しくフルリノベーションされたワンフロアSOHOのご紹介です。
外観はグレーで統一。
角地で1Fにはクリーニング店があり視認性に優れます。
周辺にはコンビニと充実した飲食店があり、ランチに困ることはありません。
募集は6Fのワンルーム。
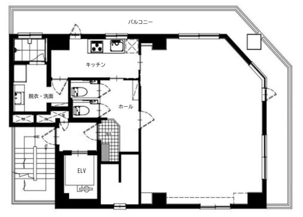
元々住居だった区画を今回SOHO仕様にリノベーションいたしました。
おおよそ長方形をした間取りは6名程でデスクを並べて仕事をしても余裕がありそうです。
窓からは採光が、外には広々としたバルコニーがございます。
内装はシンプルなデザインとなっているのでレイアウトで遊んでみるのは如何でしょうか。
床は木目調のフロアタイルに、天井はライティングレール仕様です。
お手洗いはこの広さでは珍しい2つ仕様。
水回りは白と黒で統一されており、清潔感があって使い勝手が良さそうです。
シンプルながら要所を抑えている本物件。
広々としたワンルームを囲むようにバルコニーがあるのもポイントですね。
ワンフロアでゆったりと仕事をしたい人は是非ご検討ください。
管理番号:S186292
賃料:
共益費:
住所:東京都中央区入船3
広さ:78.21㎡
アクセス:東京メトロ有楽町線「新富町駅」徒歩2分、JR京葉線・東京メトロ日比谷線「八丁堀駅」徒歩4分、東京メトロ日比谷線「築地」徒歩6分
構造・規模:鉄筋コンクリート造 地下1階地上7階建
築年:1991年
保証金:
礼金:
備考:定期借家契約(2年契約)、火災保険(加入必須)、エレベーター1基
〈上記以外で契約時に掛かる主な費用〉
・仲介手数料(賃料1ヶ月分税別)
・前家賃(1ヶ月分)
・日割り家賃(月途中での賃料発生の場合)
・初回保証委託料(賃料合計の最大100%)
・火災保険料
最新記事 by 辰口 (全て見る)
-
神田5分、1階路面の希少な会議室付オフィス
[千代田区/67万/76㎡] - 2026年2月2日 -
渋谷、家具・会議室付きデザイナーズオフィス
[渋谷区/145万〜/114㎡] - 2026年1月30日 -
渋谷6分、敷金0、会議室付のハーフセットアップ
[渋谷区/142万/114㎡] - 2026年1月30日 -
築地駅の出口前、カフェ風セットアップ
[中央区/69万/85㎡] - 2026年1月29日 -
大塚駅5分、会議室付シンプルデザイナーズオフィス
[豊島区/91万/152㎡] - 2026年1月27日
