物件をブックマーク
管理番号:S298508
恵比寿駅徒歩3分、自由度の高い開放感あふれるガラスファサードの一棟ビル。
IT・スタートアップ企業を中心に高い需要を集める渋谷区。その中でも恵比寿は、渋谷と並ぶ主要オフィスエリアとして成熟を続ける街です。情報感度の高い企業やクリエイティブ人材が集まるこのエリア。その中でも恵比寿南の閑静なエリアに佇む、スタイリッシュな外観が目を引く、事業の“顔”となる拠点を構えられる一棟物件のご紹介です。

グレーの外壁とガラスファサードが印象的な、端正でモダンな佇まい。前面ガラス張りのファサードは、オフィスとしてのブランディングにも一役、縦に伸びるガラス面が建物の存在感を際立たせ、視認性も良好です。

1階は、温かみのある木目の天井とフローリングが、訪れる人を優しく迎え入れる洗練された空間です。
ダイナミックな窓とモダンなライン照明が空間を演出します。
前面ガラス張りによる高い視認性を備えつつ 、その穏やかな立地は、じっくりとブランドの世界観を伝える物販・サービス系店舗や、集中力を高めるクリエイティブな事務所としての利用に最適です。

ダイナミックな窓とモダンなライン照明が空間を演出します。
前面ガラス張りによる高い視認性を備えつつ 、その穏やかな立地は、じっくりとブランドの世界観を伝える物販・サービス系店舗や、集中力を高めるクリエイティブな事務所としての利用に最適です。

2階の室内は、落ち着いたトーンでまとめられたシンプルかつ洗練された空間です。壁一面の大きな窓からは明るい自然光がたっぷりと差し込み、開放感あふれるワークスぺースを演出します。

整形かつ無駄のない造りとなっており、レイアウトの自由度が非常に高いのが特徴です。
柱に邪魔されることなくデスク配置や什器計画を柔軟に検討できるため、チームの成長や働き方の変化にもスムーズに対応可能です。
柱に邪魔されることなくデスク配置や什器計画を柔軟に検討できるため、チームの成長や働き方の変化にもスムーズに対応可能です。

3階は住居仕様の区画のため有効面積はコンパクトですが、バックオフィスやストレージスペースとしての活用に適しています。
各階の内装に違いがあるからこそ、立体的に“役割を設計できる”一棟空間です。
各階の内装に違いがあるからこそ、立体的に“役割を設計できる”一棟空間です。

トイレ・洗面台・ミニキッチンを備えた水回りは、清潔感のあるシンプルな仕様。お手洗いは1階と3階に設けられており、複数フロア利用時にも動線を確保しやすい構成です。

恵比寿というブランド性と、3層構成の自由度。
対外的な発信力と、機能的なワークスペースを両立したい企業にフィットする物件です。サービス系店舗併設型の本社、あるいは事業拡大フェーズに入ったスタートアップの拠点をお探しの方におすすめです。
街の喧騒から一歩離れたこの場所で、ゆとりある独自の運営スタイルを実現してみてはいかがでしょうか。
対外的な発信力と、機能的なワークスペースを両立したい企業にフィットする物件です。サービス系店舗併設型の本社、あるいは事業拡大フェーズに入ったスタートアップの拠点をお探しの方におすすめです。
街の喧騒から一歩離れたこの場所で、ゆとりある独自の運営スタイルを実現してみてはいかがでしょうか。
管理番号:S298508
賃料:¥1,750,000(税込 ¥1,925,000)
共益費:なし
住所:渋谷区恵比寿南3
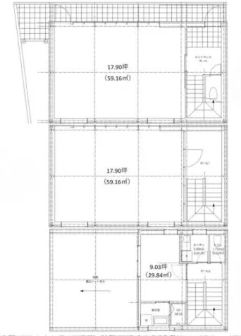
広さ:1階 59.16㎡(17.90坪)
賃料:¥1,750,000(税込 ¥1,925,000)
共益費:なし
住所:渋谷区恵比寿南3
広さ:1階 59.16㎡(17.90坪)
2階 59.16㎡(17.90坪)
3階 29.84㎡(9.03坪)
合計 148.16㎡(44.82坪)
アクセス:JR山手線「恵比寿駅」徒歩5分、東京メトロ日比谷線「恵比寿駅」徒歩3分、東急東横線「代官山駅」徒歩8分
構造・規模:S造 地上階3建
築年:2004年
敷金:事務所:3ヶ月、店舗:6ヶ月
礼金:なし
備考:普通借家契約(3年間)、保証会社利用必須、火災保険必須、入居時期:即日、更新料(新賃料の1ヶ月分・更新事務所手数料0.25ヶ月)、飲食不可
アクセス:JR山手線「恵比寿駅」徒歩5分、東京メトロ日比谷線「恵比寿駅」徒歩3分、東急東横線「代官山駅」徒歩8分
構造・規模:S造 地上階3建
築年:2004年
敷金:事務所:3ヶ月、店舗:6ヶ月
礼金:なし
備考:普通借家契約(3年間)、保証会社利用必須、火災保険必須、入居時期:即日、更新料(新賃料の1ヶ月分・更新事務所手数料0.25ヶ月)、飲食不可
〈上記以外で契約時に掛かる主な費用〉
・仲介手数料(賃料1.1ヶ月分(税込))
・前家賃(1ヶ月分)
・日割り家賃(月途中での賃料発生の場合)
・初回保証委託料(賃料合計の最大100%)
・火災保険料
The following two tabs change content below.
SOHOオフィスのファインディング、コンテンツ制作、リーシングを担当。
神奈川生まれ。東京藝術大学では油画を専攻、絵画や漫画などの創作活動を行う。その後、建築業界でリノベーションのセールスを経て、トランスリアルに参画。
最新記事 by 瀬川 (全て見る)
-
中目黒、桜の木を囲むデザイナーズメゾネットSOHO
[目黒区/23万/44㎡] - 2026年3月2日 -
六本木、レベル差を楽しむデザイナーズ空間
[港区/38万/34㎡] - 2026年3月2日 -
原宿駅前。歴史に立ち、未来へ進む接合点
[渋谷区/35万~/27㎡~] - 2026年3月2日 -
代々木上原、立体構成の新築デザイナーズSOHO
[渋谷区/29万~/46㎡~] - 2026年3月2日 -
赤坂、透明感と天高で魅せる1階ホワイト空間
[港区/58万/69㎡] - 2026年2月27日
