
多様なライフスタイルが行き交う神宮前3丁目アドレス。
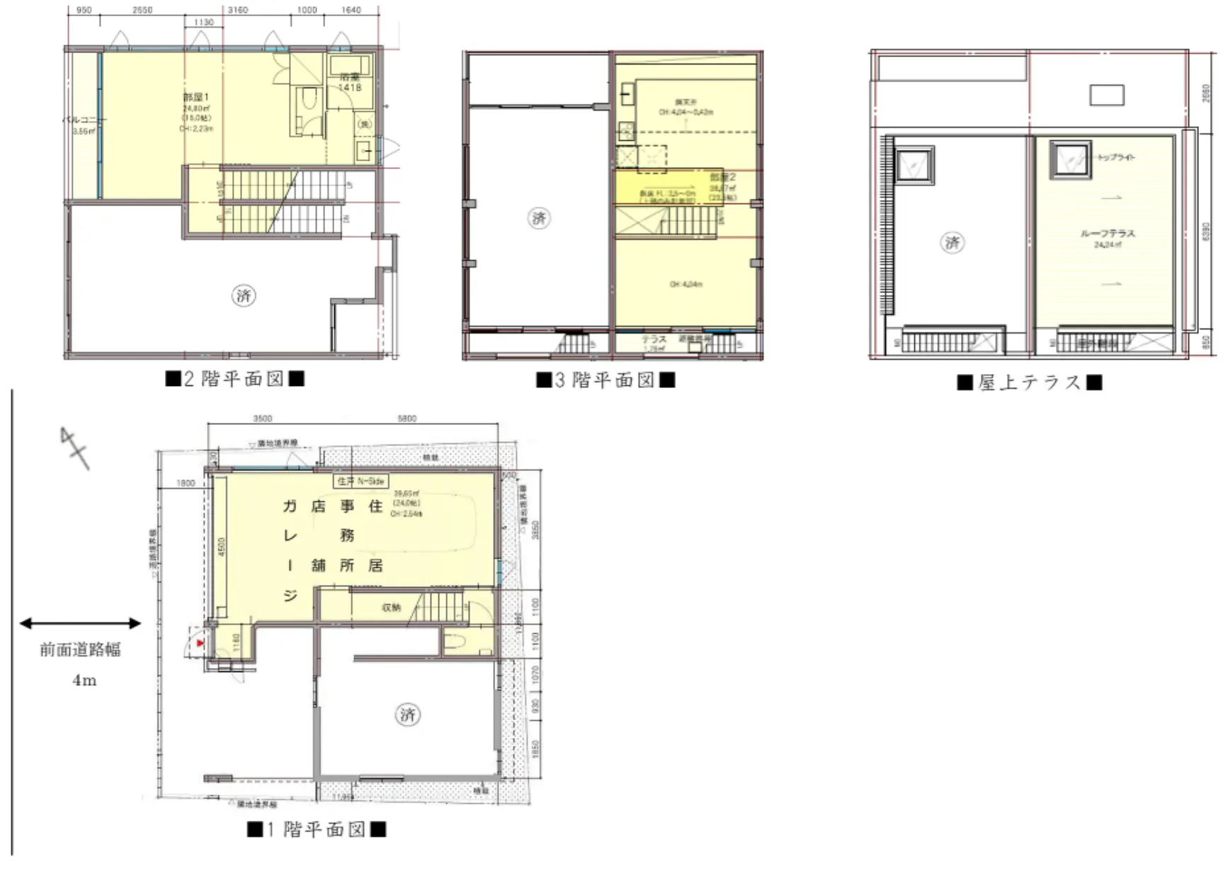
ガレージ利用可能な1階、開放感ある上階、屋上テラスまで備えたSOHO・店舗可物件。
*住居兼事務所・住居兼店舗契約(実際にお住まいになっていただく必要があります。)
*非課税、登記可能
*非課税、登記可能
表参道・外苑前エリアという都心立地にありながら、どこか落ち着きと余白を感じさせる一棟風物件のご紹介です。
新築RC造・3階建ての建物は、住居としての快適性と、SOHOや店舗利用にも対応できる柔軟性をあわせ持った設計が魅力です。
ガレージ付きの1階、開放感のある2・3階構成、そして屋上には専用テラスも備えられており、働く・暮らす・表現する、といった複数の用途を自然に受け止めてくれる構成。

全体として、奇をてらわず、それでいて建築的な強さを感じさせる一棟。
1階部分はガレージ兼店舗利用を想定したつくりで、住居・SOHO・店舗といった多様な用途を受け止める外観に仕上がっています。向かって右側の駐車スペースは使用中となります。

1階は、約40㎡のガレージスペースを備えたフロア。
RC打ち放しの躯体がそのまま現れた空間は、無機質でありながら力強い印象。
床・壁ともに余計な仕上げを施していないため、業態やブランドの世界観に合わせて自由に設えられる余地があります。
RC打ち放しの躯体がそのまま現れた空間は、無機質でありながら力強い印象。
床・壁ともに余計な仕上げを施していないため、業態やブランドの世界観に合わせて自由に設えられる余地があります。


階段を上がり、2階は住居としても執務室としても使いやすい、シンプルで整ったワンフロア空間。
床・壁・天井は無駄な装飾を抑えたミニマルな仕上げで、用途に応じて自由にレイアウトを組める余白があります。
床・壁・天井は無駄な装飾を抑えたミニマルな仕上げで、用途に応じて自由にレイアウトを組める余白があります。
3階へと続く、光を引き込む階段。時間帯によって陰影がくっきりと現れるこの動線は、空間体験の一部として設計されていて、この建物らしい印象的なポイントです。


建物の最上階に位置する3階は、天井高約3.8mというこの物件の空間性を象徴するフロア。
コンクリートの壁面とシャープな床仕上げに、大きく取られた開口部から自然光が差し込み、時間帯によって表情を変える、印象的な空間が広がります。
コンクリートの壁面とシャープな床仕上げに、大きく取られた開口部から自然光が差し込み、時間帯によって表情を変える、印象的な空間が広がります。

階段まわりを包み込む立体的なコンクリーの造形は、単なる動線としてではなく、空間の中心的な存在として設計されており、視線の抜けや光の入り方まで計算された構成です。


住宅街にありながら空が近く、日中は照明に頼らずとも十分な明るさを確保できます。
撮影やショールーム、クリエイティブワークの拠点としても、自然光を活かした使い方が想像しやすい印象です。
撮影やショールーム、クリエイティブワークの拠点としても、自然光を活かした使い方が想像しやすい印象です。


外階段を上がった先には、約30㎡の専用使用が可能な屋上テラスを備えています。
空が近く感じられる開放的なロケーションで、都心にいながら外時間を楽しめる、希少性の高いスペースです。
空が近く感じられる開放的なロケーションで、都心にいながら外時間を楽しめる、希少性の高いスペースです。
BBQや植物栽培といった使い方も可能で、仕事の合間のリフレッシュはもちろん、空間づくりの一部として屋外を取り込むこともできます。
さらに、サウナの設置についても相談可能という点は、この物件ならではの魅力。
さらに、サウナの設置についても相談可能という点は、この物件ならではの魅力。

住居・SOHOとしての機能性をきちんと押さえつつ、デザイン性を損なわない水回り計画は、この物件らしい完成度の高さを感じさせるポイント。生活の場としても、働く拠点としても、ストレスなく使える設備環境が整っています。

ガレージ、吹き抜けのある上階、そして屋上テラスまで。
それぞれのフロアに明確な役割と表情があり、空間をどう使うかを考える時間そのものが楽しくなる物件です。
それぞれのフロアに明確な役割と表情があり、空間をどう使うかを考える時間そのものが楽しくなる物件です。
天高3.8mの3階空間や、BBQ・植物栽培も可能な約30㎡の屋上テラスなど、都心ではなかなか出会えないスケール感も魅力のひとつ。
住まいとしても、仕事場としても、既成概念にとらわれない使い方が叶います。
住まいとしても、仕事場としても、既成概念にとらわれない使い方が叶います。
賃料:¥950,000(非課税)
共益費:賃料に含む
住所:渋谷区神宮前3
広さ:133.64㎡(40.43坪)
アクセス:東京メトロ千代田線・半蔵門線「表参道駅」徒歩7分、東京メトロ銀座線「外苑前駅」徒歩7分、都営大江戸線「国立競技場駅」徒歩15分
構造・規模:RC造 地上3階建
築年:2025年
敷金:2ヶ月
礼金:なし
備考:普通借家契約(2年間)、保証会社利用相談、火災保険必須、住居兼事務所・住居兼店舗契約、入居期間に応じて敷金の償却あり(5年以上の入居で全額免除)、ガレージ付き、屋上テラス(BBQ・植物栽培の利用可、サウナ設置相談可)、登記可能
共益費:賃料に含む
住所:渋谷区神宮前3
広さ:133.64㎡(40.43坪)
アクセス:東京メトロ千代田線・半蔵門線「表参道駅」徒歩7分、東京メトロ銀座線「外苑前駅」徒歩7分、都営大江戸線「国立競技場駅」徒歩15分
構造・規模:RC造 地上3階建
築年:2025年
敷金:2ヶ月
礼金:なし
備考:普通借家契約(2年間)、保証会社利用相談、火災保険必須、住居兼事務所・住居兼店舗契約、入居期間に応じて敷金の償却あり(5年以上の入居で全額免除)、ガレージ付き、屋上テラス(BBQ・植物栽培の利用可、サウナ設置相談可)、登記可能
〈上記以外で契約時に掛かる主な費用〉
・仲介手数料(賃料1.1ヶ月分(税込))
・前家賃(1ヶ月分)
・日割り家賃(月途中での賃料発生の場合)
・初回保証委託料(賃料合計の最大100%)
・火災保険料




