赤坂・乃木坂のフルリノベーションデザインオフィス
募集中
港区2549赤坂駅 徒歩6分

赤坂・乃木坂のフルリノベーションデザインオフィス

オフィス紹介

2019年フルリノベーション済み、写真は前回募集時の物です。

赤坂駅、乃木坂駅徒歩7分。各方面へのアクセスが良好な立地。
フルリノベーションで生まれ変わった
、モダンなデザインオフィス。

赤坂駅と乃木坂駅の中間に位置する赤坂7丁目アドレス。
六本木駅、青山一丁目駅、赤坂見附駅等の主要ビジネス街までほど近く、東京駅や新宿駅、渋谷駅といった駅へも電車で10分足らずの環境。
築40年越えのビンテージマンションの1室をフルリノベーション。
築年数は経っていますが、重厚感ある外観からはネガティブな印象はあまり感じません。
室内に入るとヘリンボーン調のエントランスが出迎えてくれます。
エントランス部分には、室内への2つの動線とトイレへの動線が確保されたボックスが設置されています。
プライバシーを守りつつ、室内へのアプローチが自然に誘導される造りです。
室内にはタイルカーペットが敷かれおり、左の写真の色合いと素材感です。大判の一般的なタイルカーペットとは異なり、少し毛足の長い面白い素材が使われています。
エントランスには先述の通り、右の写真のヘリンボーン調の素材が使われています。タイルカーペットとの対比が綺麗です。
約50平米の1LDKの住居を一度フルスケルトンにし、1ルームのデザインオフィスへとリノベーション。
白と青のツートーンを基調とした、モダンで清潔感のある内装に仕上がりました。
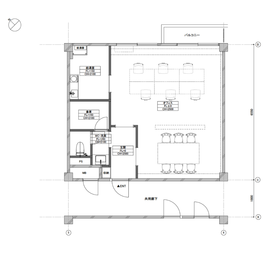
手前は4~6人程度の執務スペース、奥は2~4人程度の執務スペースかミーティングスペースとして利用ができまます。
広めのワンルームオフィスとして利用されても良いですし、真ん中を家具で緩く仕切っても良いと思います。エントランスのボックスで2つの動線が確保されているので、ミーティングスペースへの誘導もスムーズです。
間取り図のレイアウト案を参考にしてください。
机やチェアはモダンなデザインの物を選んでも良いですが、明るめのウッドテイストの物を選んでも良いと思います。
天井にはライティングレールが設置されています。
リノベーション物件を数多く見てきましたが、ここまで綺麗な配線は珍しく、非常にデザイン性が高いです。
左上:元のバスルームは設備を全て撤去し、ストレージに変更。
右上:キッチン部分にはオフィス利用に適したミニキッチンに設置。スペースに余裕があるので、複合機等はこちらに置いても良いと思います。
左下:エントランス横の洗面部分
右下:トイレはウォシュレット付き

港区赤坂エリアの貴重なリノベーション物件。
建築設計やリノベーション、店舗・オフィス・ 展示会場などのインテリアデザインを手がけ、ミニマルでモダンなデザインに定評があるoska&partners(http://oska.jp/)による設計という点も注目すべき点。
是非センスの良いブランディングに繋げて欲しい一部屋です。

 

賃料:¥253,000(税込¥278,300)
共益費:賃料に含む
住所:港区赤坂7
広さ:49.12
アクセス:千代田線「赤坂駅」徒歩7分、千代田線「乃木坂駅」徒歩8分
構造・規模:RC造地上7階建て 4階部分
築年:1978年(耐震補強済み)
敷金:3ヶ月
礼金:1ヶ月
備考:定期借家契約2年(1年未満の解約は違約金1ヶ月)、2019年フルリノベーション済み、保証会社利用必須、火災保険要加入(貸主指定)、鍵交換費用別途要負担(費用未定)

物件概要

管理番号

S2602-AVWU

募集区画

406

賃料

¥253,000(税込 ¥278,300

共益費

¥0(非課税)

敷金

3ヶ月

礼金

1ヶ月

広さ

49.12㎡ (14.86坪)

物件種目

事務所

特徴カテゴリ

デザイナーズ、ビンテージ、リノベーション、スタジオ利用可

構造・規模

- -

築年

-

入居可能時期

-

住所

港区

地図を読み込み中...

東京メトロ千代田線 赤坂駅 徒歩6分

備考

-

オフィスの見学や

お問い合わせはこちら

この記事を書いた人
村山賢太郎村山賢太郎